MB-CAD Changelog
WINDOW AND DOOR SYSTEMS: 1. MB-78EI: - updated glazing table; - added variant of buttress gasket for sash K518395X; - updated maximum construction dimensions; - removed profil K415249X and screw 87512101; 2. MB-100GFT:
- automatic profile definition improved; - question of opening limiter in construction parameters was added;
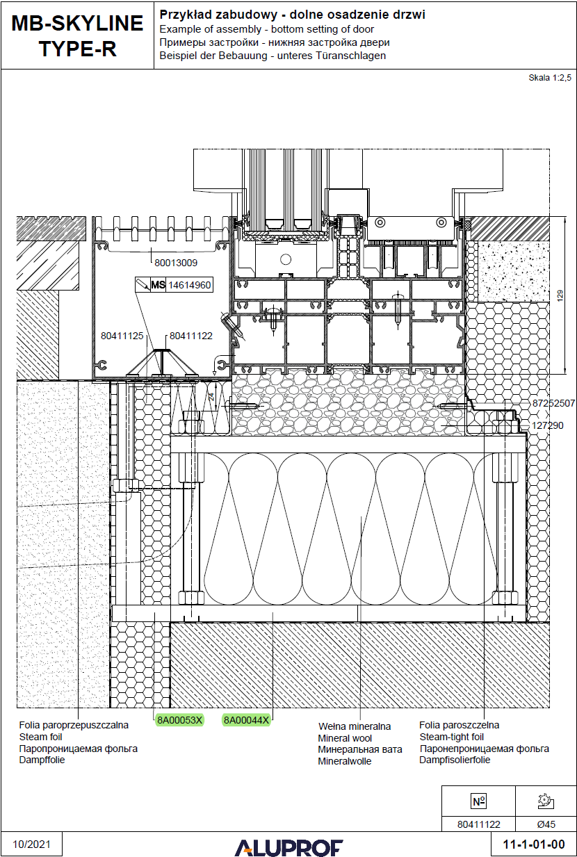
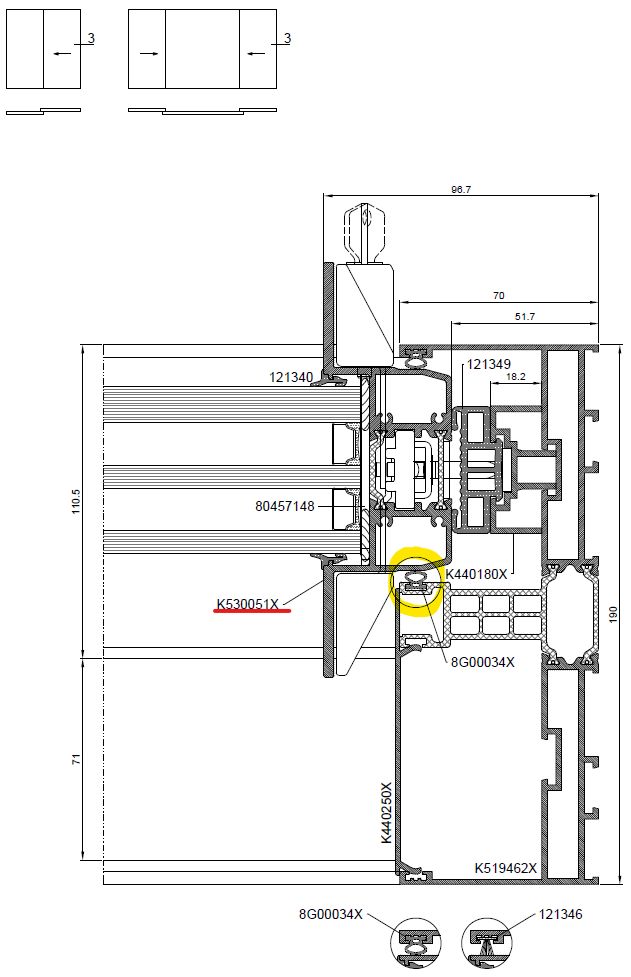
3. MB-45 improved profile cross sections 4. MB-SKYLINE TYPE-R: - hardware for sashes on the second rail was restored; - added hardware insert for K530051X and K530059X sashes;
- drain pipe selection improved from 80411124 to 80411125;
SUPLEMENTS: 1. MB-78EI: - Supplement EU2 updated supplement pages, glazing tables, allowed hardware, allowed structural dimensions; - Supplement EU4 updated supplement pages, glazing tables; - Supplement EU1 updated supplement pages, glazing tables; - Supplement BE1 updated supplement pages; - Supplement PL1 updated supplement pages;
DOOR HARDWARE: 1. Change of striker plate code in G-U BKS hardware; 2. Correction of flashings in ESCO hardware;
PROGRAM:
2. Added option to disable glass category;
|
SOFTWARE: 1. Corrected display of door closers drawing in construction view; 2. Corrected selection of glazing screw in arched structure;
|
SOFTWARE: 1. Fixed the "List index out of bounds" error when generating printouts;
AMENDMENTS: 1. MB-MT50N; - no screws on the pole; - no strip with workings on the transom; - too many glass supports; - adding 8G00196X gasket selection option; 2. MB-77HS; - fixed lengths for 009140 and 009141 in wings; - the amount of drainage 80455210 in the K518804X frame has been corrected;
3. MB-59 SLIDE GALANDAGE, corrected lengths for K433470X; 4. MB-86N Pivot Door, corrections to the selection of the direction change strip and improvement of the limitations of the hinges; 5. MB-HARMONY OFFICE DUO, corrected frame cutting angles K440116X; 6. Added initial letter 'K' or 'W' to element codes in XML;
PRICE LIST: 1. Withdrawal of Giesse fittings 80004901, 80004900 in MB-SLIDE; 2. MB-80 OFFICE, TESA inter-pane tapes withdrawn; 3. MB-45 OFFICE, TESA inter-pane tapes withdrawn;
|
PRICE LIST: 1. Price list update, price level: November, 2023; 2. Update of Dekoral color list; 3. Changed colors for some gaskets in the MB-Harmony Office system; 4. Changed the method of sale mosquito nets; 5. Panel doors AP, AD, AG price update;
FACADE SYSTEMS: 1. MB-MT50N, new facade system;
2. MB-MM50N, new facade system;
WINDOW AND DOOR SYSTEMS: 1. MB-86N PIVOT Door, new system;
2. MB-60E EI, added construction without post (glass to glass joint);
3. MB-79N US, changed pin for sash K520319X; 4. MB-FERROLINE, added K530148X profile;
DOOR HARDWARE: 1. Added roller hinges WALA WR1R for inside and outside opening doors in the MB-60E EI system;
2. Added machining for striking plate in a panic lock WILKA MB-78EI; 3. Door closer GEZE TS5000L added; 4. Removed spacer in door closers Dormakaba and GEZE for MB-45S; 5. Minor changes - correction of screw selections in door closers GEZE; 6. Corrected the selection for Roto Solid C, added CNC machining for selected profiles;
THERMAL CALCULATIONS: 1. Completed next thermal calculations: - summary of Uf value factors for MB-86 FOLD LINE HD system; - summary of Uf value factors for MB-79N system into the curtain wall; - summary of Uf value factors for MB-86N system into the curtain wall; - summary of Uf value factors for 3-rail construction of MB-77HS;
PROGRAM: 1. Added ability to switch between color and black and white printouts;
2. Added ability of no optimalization function for glazing screw - order by construction in the order; 3. Smoothed icon design activated;
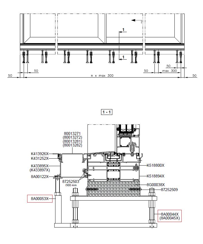
AMENDMENTS: 1. MB-SKYLINE TYPE-R, added hardware with bolting for sash K530051X and K530059X; 2. MB-SKYLINE TYPE-R, MB-SKYLINE, added consoles in construction parameter;
3. MB-86 FOLD LINE, FOLD LINE HD, corrected the selection for closing strip covers; 4. MB-77HS: - corrected the lenght of the concealing strips at the narrow labirynth; - added K518869X strip for the E-POWER 300kg and 400kg hardware; 5. MB-SLIDE ST, added plugs 8045502X;
|
|
|
PRICE LIST: 1.Price list update – price level: July, 2023; 2.8G00051X, added colours for gasket; 3.K430483X, added profile in shorter lengths 4500 mm; 4.1820093X, added new colour EC-0; 5.Adding optional colors of door inserts; 6.K520015X, K520463, K520464, K430006, added profile in shorter lengths 1130 mm; 7.120455, corrected commercial quantities for selected articles; 8.K440178X, added profile in shorter lengths 6000 mm; 9.Selected Dekoral colours restored to the offer: J107, B108, D207; 10.Selected Dekoral colours withdrawn from the panel offer: S106, S110;
WINDOW AND DOOR SYSTEMS: 1.MB-100GFT, added new system;
6.MB-60E EI added EU supplement; 7.MB-78EI DPA, adding a new door frame K430319X, updating the dimensional dependencies and spacing of fasteners;
FACADE SYSTEMS: 1.MB-SR60N, the range of glazing was extended, with a glass thickness of 64-72mm;
3.MB-SR50N EFEKT, updated glazing table; 4.MB-SR50N A, added the MB-79N system to facade catalog; 5.MB-SR50N IW, added Sobinco Chrono InvisionGO hardware;
HARDWARE: 1.WINDOW HARDWARE - added ESCO concealed door loop; - MACO Multi Matic hardware was withdrawn; - hardware was withdrawn Fapim Galicube 130kg;
2.DOOR HARDWARE - added Dormakaba TS 91, 92, 93 door closers; - added reed switch for ROTO hardware; - Dr Hahn 4AT, Correction of the upper hinge setting;
AUXILIARY ELEMENTS FOR THE DOOR & WINDOW SYSTEMS: 1.Adding a hiden dranage gasket to the MB-79N;
2.Added K440252X decorative strips
THERMAL CALCULATIONS: 1.MB-59 SLIDE, supplement; 2.MB-86 FOLDLINE HD, supplement; 3.MB-77HS, supplement for the new frame K530075X;
SOFTWARE: - MB-OPENSKY 120, added division of the structure into two colors (roof elements were separated);
- panes, the ability to set categories for panes and the ability to group them has been added;
AMENDMENTS: 1.MB-79N, the drop-profile was corrected; 2.MB-77HS, the length of drop-profile has been changed, a 3D cut has been added;
WEBSIDE: 1.The instructions tab has been added to the Aluprof website;
|
WINDOW AND DOOR SYSTEMS: 1. MB-HARMONY OFFICE, added profile doors;
2. MB-HARMONY OFFICE, changes in the shape of the leaf drawings, moments of inertia; 3. MB-OpenSky 120, variant with a lamellar roof type 2 has been added, amendments;
4. MB-SKYLINE Type-R, added triple-rail solition, fixed glazing;
5. MB-SKYLINE Type-R, added wiring in three lengths: 5mb, 10mb, 15mb; 6. MB-86N, added alternative Monticelli corners variants;
7. MB-77HS, added "narrow sash" K518826X to frame K530075X;
8. MB-77HS, added order form to hardware to E-Power;
9. MB-DPA, added new variant of sliding door MB-79N;
FACADE SYSTEMS: 1. MB-SR50N A, completed the possibility of window/door insertions into facades;
SUPPLEMENTS: 1. MB-118EI supplement update; - Supplement FR (changes in the glazing table, new profiles and accessories allowed); - Supplement EU-ETA (new supplement); 2. MB-78EI supplement update; - Supplement EU4 (new profiles and accessories allowed, changes in the glazing table, added new reports to the classification); - Supplement PL2 (new supplement); - Supplement FR (new profiles and accessories allowed,); - Supplement EU-ETA (new supplement); 3. MB-60E EI supplement update; - Suplement EU-ETA (changes in the glazing table);
SOFTWARE: 1. Profile supplier stocks added;
2. Translation of user descriptions; 3. Corrected the wind load map for Germany; 4. Improved the "don't show this message again" option. The program remembers the settings after restarting; 5. MB-77HS, GU Epower order form updated; 6. MB-Skyline, MB-Skyline Type-R, ESCO actuator order form updated with three-rail versions, added order form and commissioning form in German language;
HARDWARE: 1. WINDOW HARDWARE
- the shape of the balcony catch-bolt ROTO has been changed;
- update of the selection of hardware in the Fapim Magicube tilt windows;
2. DOOR HARDWARE
- completing roller hinges: WALA WR1R, WR2R for doors in systems: MB-79N, MB-86, MB-86N; - Anti-burglar systems, changed Fuhr magnetic cover;
AMENDMENTS: 1. MB-45, corrected numbers of connectors for T-90 type connections; 2. MB-45, corrected numbers of brush tightening; 3. Door fittings – Correction of the selection of cylinders; 4. MB79N, 18 mm glazing beads have been added to the window sashes; 5. The method of assembling the structure in various systems has been unified (for example: pins, mounting plates, concrete screws); 6. MB-77HS, leaf overlap for monoraill; 7. MB-77HS, corrected the length of the klipsów at the frame K530075X, K518804X; 8. MB-86N, added angle posts to add-on profiles; 9. MB-86 FOLD LINE HD, blocked availability of the Fuhr lock for not allowed scheme; 10. Window fittings Fapim Galicube, added selection of bolting;
11. Door fittings, corrected selection of G-U electrical equipment;
PRICE LIST: 1. Cover 80009420 was replaced with cover 8H000700 in all solutions in fittings; 2. MB-OpenSky 120, smaller packaging was introduced for selected accessories : (10pcs for: 7105A616, 7108A434, 7118A406, 7127L414, 7211M008, 80371262, 80371316); 3. AD panels, end of special offer; 4. Panels AP21..24, special offer–5% until 30.06.2023r.;
|
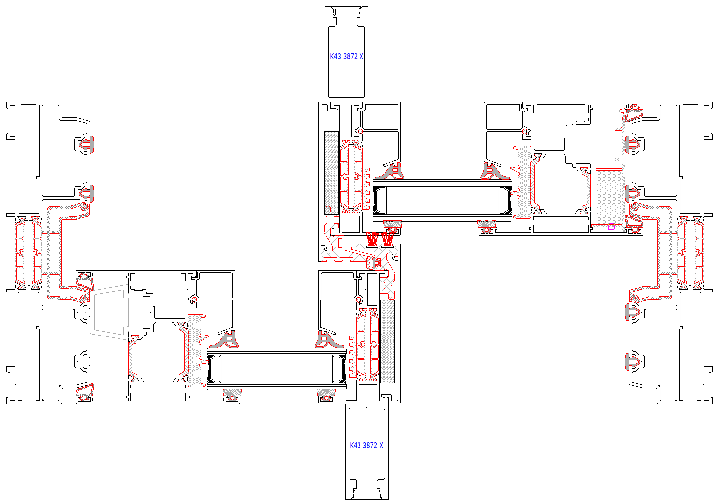
AMENDMENTS: 1. MB-77HS; - added sash reinforcement K43 3872 X, K43 3873 X for narrow profile;
- corrected the template for 2-rail construction; 2. MB-OpenSky 120; - corrected dimension of construction and dimension macros; - corrected display of construction and material selection; - removed template with drive on the left side of the construction; - set colour anod profile K44 0650 X as first choice;
|
1. Due to problems with the FTP server, we are uploading the programme again. Please upgrade;
|
AMENDMENTS: 1. MB-SKYLINE Type-R, corrected length of accessory lengths in combination G; 2. MB-86N, corrected numbers of mounting plates 80311040; 3. MB-79N, spacer code corrected for RC2; 4. MB-45, corrected the selection of connector for profile K41 5220 X; 5. MB-77HS; - changed glass corners dimensions and the length of the reversing profile; - corrected the selection of pull handle; - corrected the selection of fittings for leaf Hs>2743mm;
PRICE LIST: 1. MB-OpenSky 120, added missing prices; 2. MB-OpenSky 120, corrected prices due to ordering in packages/pieces; 3. MB-OpenSky 120, removed some undercoats (Epoxy, Seaside) for profiles;
|
NEW SYSTEM ADDED; 1. MB-OpenSky 120, new system added;
WINDOW AND DOOR SYSTEMS: 1. MB-77HS, system update; - A new combination G3 was added;
- The division of the upper and lower frames independently of each other was added;
- Mounting consoles were added;
- The possibility of glazing from the inside with the K(..) 8610 X profile has been added;
- The selection of elements in the fitting has been fixed; - The length of the grilles has been corrected; 2. MB-86N system development, update; 3. MB-78EI supplement update; - Supplement EU3 EI (addition of new fittings after the addition of new reports to the classification); - Supplement EU3 (change of construction description and addition of indexes to EI classes); - Supplement EU3 EI1 (new pages added to the status, note about reaming screws removed); - Suplement AT (update of fittings, change of section numbers); - Supplement AT (Adding new catalog pages to the table with statuses); 4. Anti Burglar Systems (update of list of MB-86EI profiles according to the SKG report); 5. MB-INSTALLATION SOLUTION (the solution for the MB-86N, MB-79N Casement and MB-79N US systems has been developed);
7. Extension of the list of fasteners to include alternative settings in the X and Y axes;
FACADE SYSTEMS:
2. MB-SR60N (MB-79N system has been added to the catalogue);
HARDWARE: 1. WINDOW HARDWARE - Zmiana doboru mocowań nożyc Kempton, Sterling; 2. DOOR HARDWARE - The pins 8H00972X, 8H00973X were added to the Eco Schulte handle;
- The option to select the door leaf K(..)18742X as a door frame in MB-86 and MB- 86N was added;; - Selection of the Fapim rosette for the Hera handle has been added;
SOFTWARE: 1. The option of hiding comments in the order has been added;
2. Macro „number of pcs in construction” has been added; 3. The option of marking your favourite systems, profiles, sashes and glass with a star has been added;
4. The option of copying a construction based on already created one was added in the Drawing Editor
5. Possibility to insert add-on (with price) when inserting a comment has been created;
AMENDMENTS: 1. MB-78EI The selection of the swelling gasket has been corrected; 2. MB-78EI Correction of the selection of angle bars with non-standard glazing; 3. MB-Slide Incorrect message "Profile wrongly defineg" removed;
PRICE LIST: 1. Restoration of Securistyle Sterling scissor hinges; 2. Added profiles in shorter lengths: K530075X, K530071X, K530072X, K530073X, K530074X, K432939X, K430229X, K440230X, K530088X, K518828X, K530087X, K518808X; 3. Added the new discount group: MBOPENSKY;
WITHDRAWAL: 1. MB-FOLDING DOOR (system withdrawal);
|
PROGRAM; 1. Correction of the software related to the change of facade profiles for curtain wall systems; |
PROGRAM; 1. From 3.89 version new function - include gaskets and accessories in the Cutting List;
IMPROVEMENTS; 1. Improved of spontaneous change in Ug and PSI of infills;
3. MB77HS Negative lengths on LC for short barbs added; 4. MB79N Corner selection for K520012X frame corrected; 5. Height of handles on maching is corrected - software reported centre of sash;
|
































































































