Minimale Breite des Profils bei festen Fenstern
35,2 mm
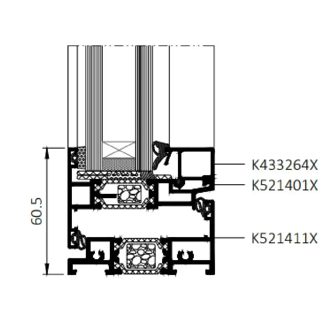
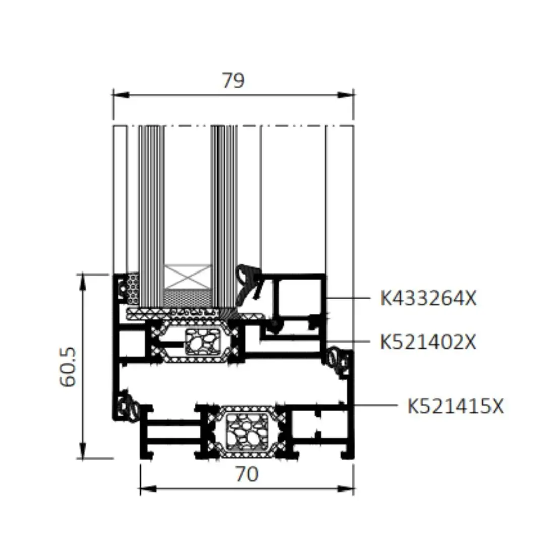
Minimale Breite des Profils bei öffnenden Fenstern
60,5 mm
Maximales Flügelgewicht
80 kg
Die nach außen öffnenden Fenster mit schmalem Profil vom Typ MB-79N CSF wurden für die anspruchsvollsten Kunden im Vereinigten Königreich und in Irland entwickelt. Sie bieten fortschrittliche Technik und eine hochwertige Verarbeitung – ideal für Hersteller, Architekten, Investoren und private Bauherren, die auf Qualität, Ästhetik und Energieeffizienz Wert legen.
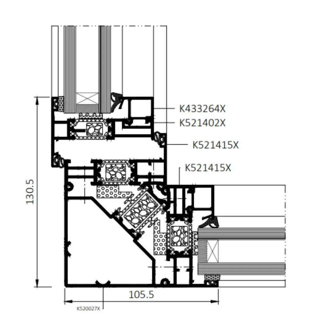
Mit einem thermisch getrennten Drei-Kammer-Profil kombiniert das System MB-79N CSF ein minimalistisches Design mit ausgezeichnetem Wärmeschutz. Es erlaubt die Fertigung verschiedener Fenstertypen, darunter Festverglasungen, Drehflügel- und Klappflügelfenster. Das System ist in zwei Designvarianten erhältlich: einer flächenbündigen Ausführung, bei der Rahmen und Flügel außen auf einer Ebene liegen, und einer nicht flächenbündigen Ausführung, die an klassische Drehflügelfenster erinnert und die architektonische Wirkung betont.
Auf vielfältige Anforderungen abgestimmt
Das System wurde mit hoher Flexibilität konzipiert und eignet sich für unterschiedlichste Anwendungen. Es ist in zwei thermischen Ausführungen erhältlich – jede mit spezifischem Dämmwert. MB-79N CSF ST ist eine wirtschaftliche Lösung mit soliden Dämmeigenschaften – ideal für Projekte mit begrenztem Budget. MB-79N CSF SI ist mit speziellen Isolierelementen innerhalb der thermischen Trennung ausgestattet und bietet eine deutlich verbesserte Energieeffizienz. Dank dieser Vielseitigkeit eignet sich das MB-79N CSF-System sowohl für Wohn- als auch Gewerbeobjekte und bietet maßgeschneiderte Lösungen für individuelle Design- und Effizienzziele.
Eine Marktneuheit: das innovative Hybridband
Speziell für dieses Drehflügelfenster wurde ein neuartiges Hybridband entwickelt. Diese innovative Lösung bietet eine außergewöhnliche Tragfähigkeit von bis zu 80 kg. Damit lassen sich größere und schwerere Fensterflügel realisieren – bei gleichzeitig hohem Niveau in Sachen Sicherheit, Langlebigkeit und Funktionalität.
Vorteile des MB-79N CSF für Hersteller:
Vorteile des MB-79N CSF für Architekten:
Vorteile des MB-79N CSF für Investoren und Eigentümer:
.webp)
.webp?v=1762499544)
.webp?v=1762499544)
.webp?v=1762499544)







