Main page
Projects
Warsaw, Poland
Towarowa Towers
Object data
Location:
Warsaw, Poland
Category:
Office Buildings
Architects:
FS&P Arcus Sp. z o.o. we współpracy z Epstein Sp. z o.o.
Used systems
MB-SR50N HI+
A mullion-transom wall with high thermal insulation
See more
MB-GLASS BARRIER
External juliet balcony
See more
MB-SUNPROF
Facade louvre system
See more
MB-86 SI PANEL WINDOW
Ventilation window in high-rise buildings
See more
MB-77HS HI
Lift and slide balcony door with enhanced thermal insulation
See more
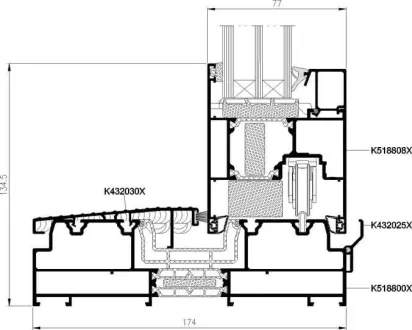
MB-86 SI
Window-door system with a thermal barrier
See more
Similar objects
Kennedy Quay
Ireland,
Bottleworks
Ireland,
see more projects