Max dimensions of the door leaf (H × L)
H up to 2400 mm; L to 1250 mm
Max weight of the sash (door / window)
120-130 kg
МВ-45 является современной алюминиевой системой, которая служит для выполнения не требующих термической изоляции архитектурных элементов внутренней и наружной застроек, например: различного вида внутренних перегородок, окон, дверей, в том числе передвигаемых в ручную и автоматически, маятниковых дверей, прихожих, витрин, кассовых боксов, пространственных конструкций.
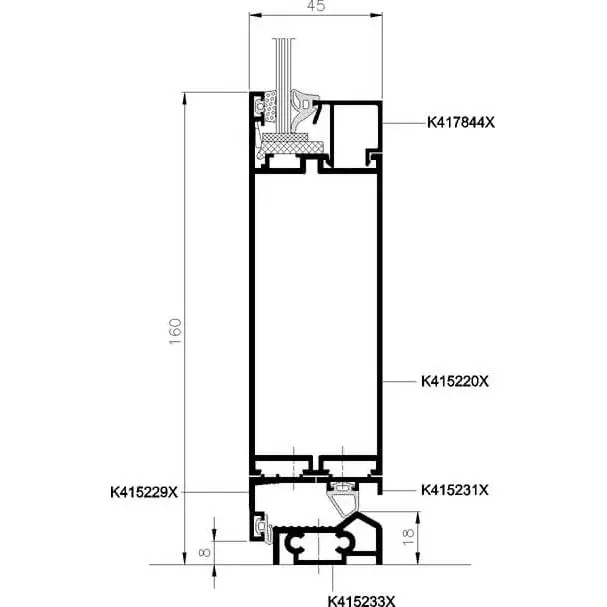
Конструктивная глубина оконных профилей составляет: 45 мм (коробка), 54 мм (створка), а дверных – соответственно: 45 мм и 45 мм. Так принятые глубины профилей коробки и створки, дают эффект одной плоскости с наружной стороны после закрытия – касается окон, и эффект одноликой поверхности дверного полотна и коробки – касается дверей. Форма профилей позволяет получить тонкие и прочные конструкции окон и дверей.
Существенным достоинством системы МВ-45 является возможность изгиба профилей, например для коробок, створок и перемычек, что обеспечивает выполнение разного вида дуг и дугообразных конструкций.
Герметичность обеспечивается благодаря применению специальных уплотнителей из синтетического каучука EPDM, который гарантирует стойкость к старению в течение многих лет эксплуатации.
Характерной чертой системы является его тесная связь с оконно – дверными системами MB-45D, MB-45FD, MB-60 i MB-70. Универсальность и привлекательность системы дополнительно увеличивается за счет возможности выбора нескольких вариантов решений, касающихся разных конструктивных деталей, например: нижнего уплотнителя дверного полотна, уплотнения передвижных и маятниковых дверей, формы планок остекления, Формы и высоты дверных порогов. С этой системой также связана конструкция врезных дверей MB-45S.
Система позволяет на применение систем остекления толщиной от 2 мм до 35 мм в створках окон и от 2 мм до 26 мм в глухих окнах и дверных полотнах. На базе системы MB-45 возможно также выполнение дымонепроницаемых дверей класса Saи S200.


