Constructions in
EI30 | EN 13501-2
Smoke-proof
Sa, S200 |
Self-closing
C5 | EN 1191 |

MB-60E EI is an economical system for internal fire-resistant partitions and doors, designed for the construction of internal walls with single- and double-leaf doors as well as technical windows. It allows the creation of both glazing-only partitions and classic framed structures.
Structures made using the MB-60E EI system achieve fire resistance of up to EI30 in accordance with EN 13501-2+A1. The doors can additionally meet smoke control requirements in class S200 and Sa3 (EN 13501-2+A1), as well as self-closing performance class C5. MB-60E EI is classified as non-fire spreading (NRO). Moreover, MB-60E EI fire doors can also achieve burglary resistance up to class RC2.
Design without compromise – safe solutions for office buildings and public spaces
The MB-60E EI system enables the design of large glazed partitions that stand out with high aesthetics and visual lightness. Structures made with this system can be used on escape routes and also serve as smoke ventilation elements in stairwells.
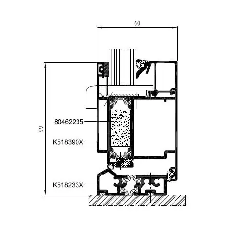
The structure’s resistance to high temperatures is ensured by fire insulation elements installed in the internal chambers of the profiles. In addition, the constructions are equipped with special intumescent tapes that activate under high temperature.
MB-60E EI allows the use of EI30 fire-resistant glazing with thicknesses from 5 to 41 mm. In glazing-only partitions, the joint between glass panes is just 3–5 mm wide. The glass is fixed using glazing beads on the internal side, while the steel accessories used ensure the pane remains in place during a fire.
A flexible solution for a wide range of projects
The MB-60E EI system enables the construction of doors with a maximum width of up to 1.4 m and a maximum height of up to 2,475 m. For double-leaf doors, the total leaf width can reach 2.58 m. For fixed walls in the glazing-only version, the maximum glazing dimensions available are 1000 x 2900 mm (W x H), with no limitation on the overall wall length.
The partitions in the MB-60E EI system hold European Technical Assessments ITB no. ETA-24-0153 and ETA-18-0914.
For project owners
For architects
For fabricators
Aluprof products – what makes them stand out?
Design your space without compromise — choose MB-60EI and combine safety with modern design at an affordable price.
.webp)








