MB-SR50N HI+

Façade-rideau à montants et traverses avec isolation thermique élevée

Étanchéité à l'air

AE 1200 Pa

Étanchéité à l’eau

RE 1200 Pa | EN 12154

résistance aux chocs

I5/E5 | EN 14019

Isolation thermique

Uf à partir de 0,59 | W/(m2K)

Certificats:

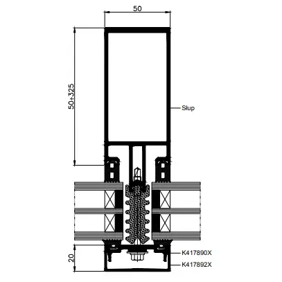
Le système à montants et traverses MB-SR50N HI+ sert à réaliser des façades rideaux légères, suspendues ou de garniture, des verrières, puits de lumière ou autres constructions en volume.

Ce système permet de construire des façades à lignes étroites de partage visibles tout en garantissant une structure résistante et durable. Le grand choix de profilés disponibles offre aux architectes et bureaux d’étude la possibilité de réaliser les projets de construction aluminium-verre les plus audacieux. Pour obtenir une isolation thermique et acoustique optimale et afin de faciliter le montage de la façade système MB-SR50N HI+, on emploie un isolant PE qui donne une très bonne isolation thermique (Uf: à partir de 0,59 W/m2K) et dont la forme guide les vis dans la bonne direction pendant le montage des vitrages.

Comme éléments ouvrants des façades à isolation thermique accrue de type „HI”, il est très recommandé de monter des portes et fenêtres MB-86 Aero à meilleure isolation thermique.

Caractéristiques importantes pour les fonctionnalités et l’esthétique des façades système MB-SR50N HI+:

  • montants et traverses à bords aigus donnant une façade dont la structure porteuse présente un quadrillage régulier
  • raccords d’angle offrant une grande liberté de conception des structures aluminium
  • variantes esthétiques de façades et profilés de garniture extérieure de formes variées offrant de nombreuses possibilités de composition des façades
  • choix étendu d’éléments d’ouverture montables en façade : différents types de fenêtres et portes dont les tabatières, fenêtres intégrées à la façade, fenêtres oscillantes et à ouverture parallèle MB-SR50N OW
  • grand choix de vitrages (dont les triples et quadruples vitrages), pièces d’isolation et accessoires permettant d’obtenir un niveau élevé d’isolation thermique
  • des consoles de façade très résistantes, adaptées aux poids maximum des remplissages prévus à être utilisés avec ce système
  • Brochure MB-SR50N HI+
    0.97 MB / pdf
  • Certificat du PHI Darmstadt pour MB-SR50N HI+
    6.31 MB / pdf
  • Certificat Cradle to Cradle
    157.53 KB / pdf

Nos projets

Villa Metro

Pologne, Varsovie

Villa Metro

Kamienica Żelazko

Pologne, Poznań

Kamienica Żelazko

Nobu Hotel

Pologne, Varsovie

Nobu Hotel

61 Ninth Avenue

États-Unis, New York

61 Ninth Avenue

125 Greenwich Street

États-Unis, Nowy Jork

125 Greenwich Street

Proximo

Pologne, Warszawa

Proximo

Alchemia

Pologne, Gdańsk

Alchemia

Ambassador Office Building

Pologne, Varsovie

Ambassador Office Building

Sky View Parc

États-Unis, New York

Sky View Parc

Prime Corporate Center

Pologne, Varsovie

Prime Corporate Center

Carbon Tower

Pologne, Wrocław

Carbon Tower

Nimbus Office

Pologne, Varsovie

Nimbus Office

Wydział Neofilologii Uniwersytetu Gdańskiego

Pologne, Gdańsk

Wydział Neofilologii Uniwersytetu Gdańskiego

Millenium Tower IV

Pologne, Wrocław

Millenium Tower IV

Museum of the History of Polish Jews

Pologne, Varsovie

Museum of the History of Polish Jews

Libra Business Center

Pologne, Varsovie

Libra Business Center

International Airport Poznań - Ławica

Pologne, Poznań

International Airport Poznań - Ławica

Lodz International Fair

Pologne, Łódź

Lodz International Fair

Waterfront

Pologne, Gdynia

Waterfront

Silver Tower

Pologne, Wrocław

Silver Tower

Carbon Tower

Pologne, Wrocław

Carbon Tower

Nimbus Office

Pologne, Varsovie

Nimbus Office

Wydział Neofilologii Uniwersytetu Gdańskiego

Pologne, Gdańsk

Wydział Neofilologii Uniwersytetu Gdańskiego

Millenium Tower IV

Pologne, Wrocław

Millenium Tower IV

Museum of the History of Polish Jews

Pologne, Varsovie

Museum of the History of Polish Jews

Libra Business Center

Pologne, Varsovie

Libra Business Center

International Airport Poznań - Ławica

Pologne, Poznań

International Airport Poznań - Ławica

Lodz International Fair

Pologne, Łódź

Lodz International Fair

Waterfront

Pologne, Gdynia

Waterfront

Silver Tower

Pologne, Wrocław

Silver Tower