építmények osztályokban
EI30 | EN 13501-2
Füstálló
Sa, S200 |
Önzáró
C5 | EN 1191 |

Az MB-60E EI rendszer egy- és kétszárnyú belső tűzgátló ajtók gyártására szolgál. Ezen felül a rendszer lehetővé teszi az ún. műszaki ablakok valamint tűzgátló válaszfalak létrehozását is. A MB-60E EI rendszer alapján kialakított konstrukciókat a PN-EN 13501-2+A1:2010 szabvány szerint EI15 vagy EI30 osztályú tűzállósság jellemzi. A rendszer tűzgátló rendszerként van osztályozva (NRO).
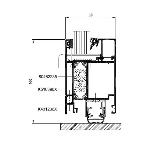
A megoldás a MB-60E hőhídmentes rendszer alumíniumprofilján alapul, amelyben az alkotóelemek konstrukciós mélysége 60 mm. A konstrukció tűzállóságát a profil belső kamráiba telepített tűzgátló szigetelőelemek biztosítják. A konstrukció ezen felül tűzálló szalagot is tartalmaz, mely tűzveszély esetén az áthatolás meggátlására szolgál.
A rendszer lehetővé teszi minden általános EI15 és EI30 osztályú, 5-41 mm vastagságú tűzgátló ablak beépítését. MB-60 E EI-ben az üveget az ablak menti lécek tartják a belső oldalon. Az alkalmazott speciális acélkiegészítők megakadályozzák az üveg kimozdulását a tűzveszély közben.
A MB-60E EI rendszer lehetővé teszi olyan ajtók kialakítását, ahol a szárnyak maximum 1,4 m szélesek és 2,475 m magasak. A két szárnnyal rendelkező ajtók szélessége akár 2,58 m is lehet. A megoldás a konstrukciós lehetőségeinek valamint az MB sorozat más elemeivel való kompatibilitásának köszönhetően sok esetben vonzó ajánlat lehet a tűzgátló védelmet nyújtó termékek kategóriájában.
.webp)








