Thermische isolatie Uf
>0,6 | W/(m2K)
Luchtdoorlatendheid
AE 1200
Waterdichtheid
RE 1200 | EN 12154
Slagvastheid
I5/E5 | EN 14019





Het systeem is bestemd voor het construeren en uitvoeren van lichte vliesgevels en infillgevels en daken, lichttunnels en andere ruimtelijke constructies.
De vorm van de stijlen en dwarsbalken maakt de constructie van esthetische gevels mogelijk met zichtbare smalle scheidingslijnen die tegelijkertijd zorgen voor een duurzame en stevige constructie. De kenmerkende afgeronde vormstukken van het systeem MB-SR50met een straal van 2,5 mm zijn in het systeem MB-SR50N vervangen door vormstukken met een zg. scherpe rand. Dit verschil heeft grote invloed op het uiterlijk van de constructie - met de toegepaste profielvormen is het mogelijk de profielen voor de stijlen en dwarsbalken zodanig te kiezen dat het vanaf de binnenzijde van de gevel lijkt alsof de oppervlakten van de stijlen en dwarsbalken gelijk zijn aan de wand. Hierdoor ontstaat een homogeen rooster in de glazen wand. Hiermee is een esthetische en precieze verbinding met andere elementen van het bouwsel mogelijk: binnenwanden en hangende plafonds.
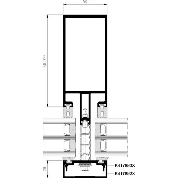
Kenmerkend voor het systeem MB-SR50N is ook de ruime keus aan stijlprofielen (van 65 mm tot 325 mm) en dwarsbalkprofielen (van 5 mm tot 189,5 mm) en de moderne accessoires en verbindingsstukken. Zij maken grotere belastingen mogelijk – de opvulling van een module van een vaste gevel kan een gewicht hebben tot 1100 kg. Het systeem MB-SR50N biedt veel vrijheid bij het ontwerpen van bevestigingspunten van de gevel en een breed scala aan beglazingsmogelijkheden, onder andere toepassing van ruiten van grote afmetingen en driedubbelglas.
De toepassing van een doorlopende warme afstandhouder die is gemaakt van het isolerende materiaal HPVC en de geprofileerde glasdichtingen van EPDM zorgen voor het behalen van de juiste thermische isolatieklasse en beperken de condensatie van waterdamp op de aluminium elementen tot een minimum.
Esthetische varianten van het systeem MB-SR50N zijn, vergelijkbaar met de eerder bekende gevels met stijlen en dwarsbalken, de versies: PL (de zg. horizontale en verticale lijn, waarin de horizontale of verticale onderverdeling is benadrukt) en de halfstructurele gevel van het type EFEKT. Extra aandacht verdient de versie met verhoogde thermische isolatie MB-SR50N HI, waarin speciale isolatoren van twee componenten zijn toegepast.
Het systeem MB-SR50N biedt de mogelijkheid om in de gevel verschillende typen ramen en deuren toe te passen, waaronder ook ramen speciaal voor gevels: tuimelramen en dakramen. Een bijzonder effectieve oplossing is de toepassing van ramen die in de gevel zijn geïntegreerd, gebaseerd op MB-SR50.
De bovendorpel- en onderraamstroken in de gevel kunnen dankzij de laagsgewijze opbouw met toepassing van onbrandbare materialen als mineraalwol en gipskartonplaten, net als de andere gevelsystemen van Aluprof afhankelijk van de constructie de vuurbestendigheidsklasse EI 30 of EI 60 krijgen.
Voor het uitvoeren van geknikte muren is in de horizontale en verticale doorsnede voorzien in speciale opzetprofielen en speciaal gevormde klemstrips en maskeringsstrips, waardoor er geen beperkingen zijn bij het ontwerp van de ruimtelijke constructie van het gebouw en de toepassing van speciale hoekstijlen niet meer nodig is.
Gevelconsoles met een hoog draagvermogen, geschikt voor de maximale vulgewichten die in het systeem kunnen worden toegepast.
Het referentiedocument voor de conformiteit voor verticale gevels op basis van het systeem MB-SR50N is de Geharmoniseerde Europese Norm "PN-EN 13830 Vliesgevels - productnorm".
Op basis van dit systeem kunnen ook inbraakwerende constructies worden gemaakt.



