Het systeem MB-Slider Window dient voor het construeren van deuren die horizontaal en verticaal schuiven, geschikt zijn voor binnen- en buitentoepassing en geen thermische isolatie nodig hebben. Schuiframen volgens het MB-Slider Window systeem kunnen worden gebruikt als doorgeefluiken in banken, kantines etc. Het schuifraamsysteem wordt gekarakteriseerd door snelle, eenvoudige prefabricatie van de constructie dankzij eliminatie van de meest arbeids-intensieve mechanische bewerkingen.
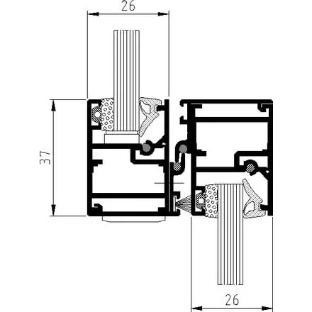
Het MB-Slider Window systeem wordt gekenmerkt door smalle vleugels en profielen. De constructiediepte van de raamprofielen bedraagt 45 mm voor het profiel en 26 mm voor de vleugel. Een enorm voordeel van een verticaal schuifraamsysteem is de verberging van de aandrijving binnenin het vleugelprofiel zodat deze oplossing niet aan esthetische waarde inboet. In het MB-Slider Window systeem wordt beslag van gerenommeerde bedrijven gemonteerd, zodat het uiteindelijke resultaat en de functionaliteit van het hoogste niveau zijn. 83



