MB-86N EI

Okna, drzwi i ścianki przeciwpożarowe klasy EI15, EW30, EI30, drzwi klasy EI60

Wodoszczelność

klasa E 1500 Pa | EN 12208

Izolacyjność termiczna

Uw od 0,86 | W/(m2K)

Przepuszczalność powietrza

klasa 4 | EN 12207

Odporność ogniowa

klasa EI30 | EN 13501-2:2016-07

Certyfikaty:

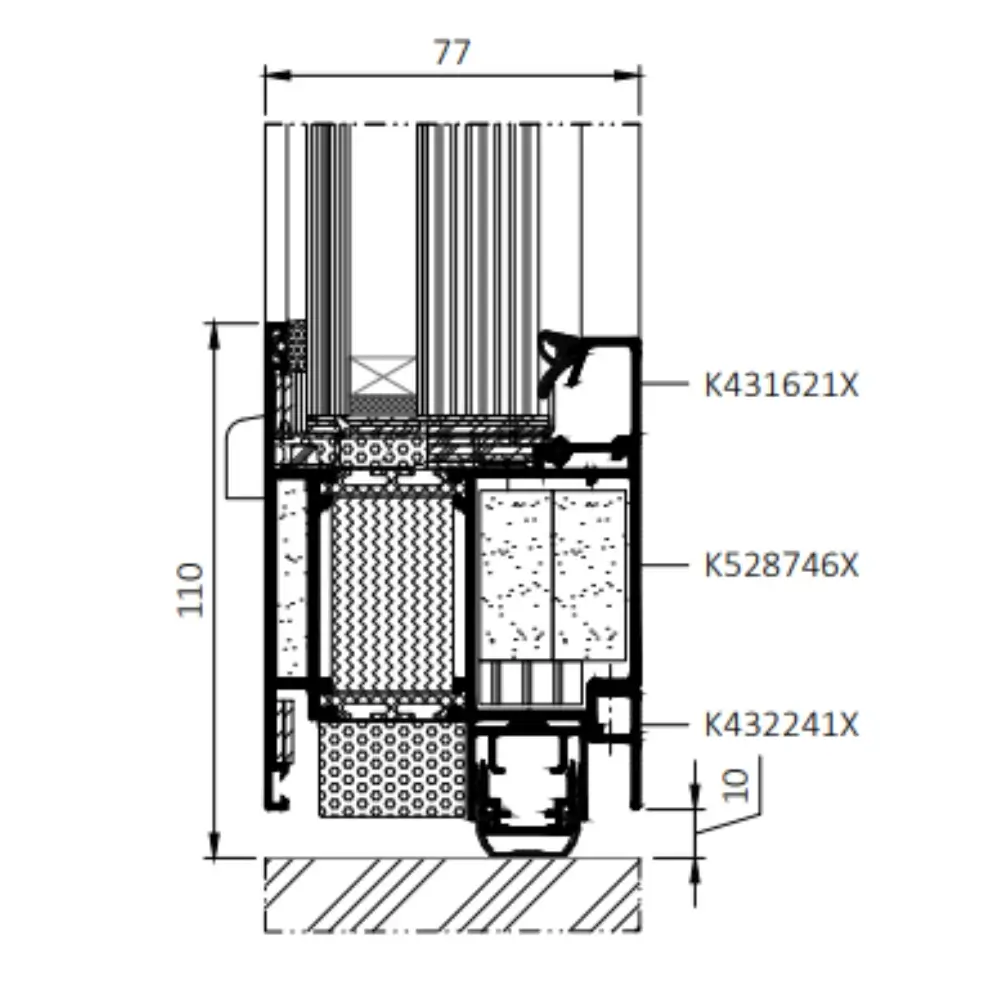
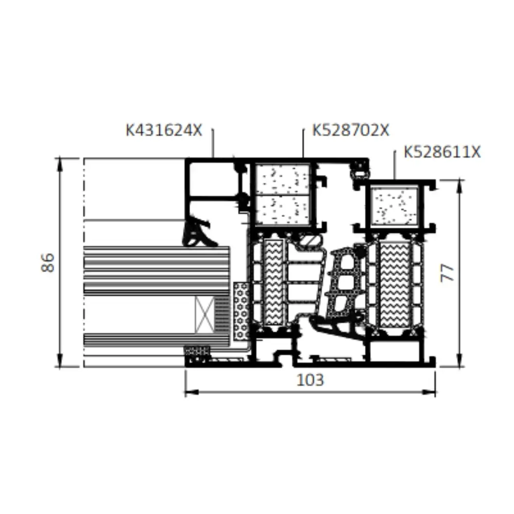
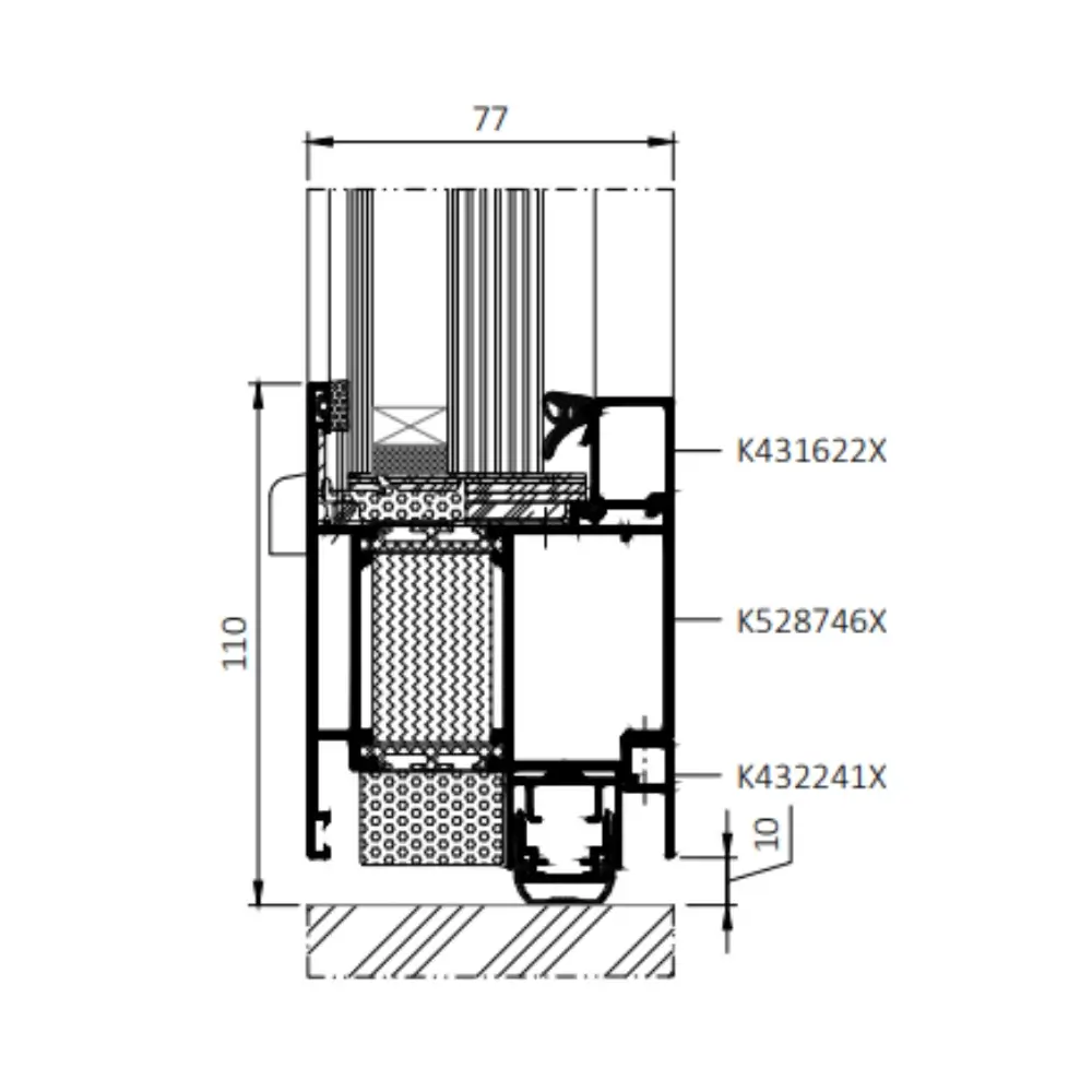
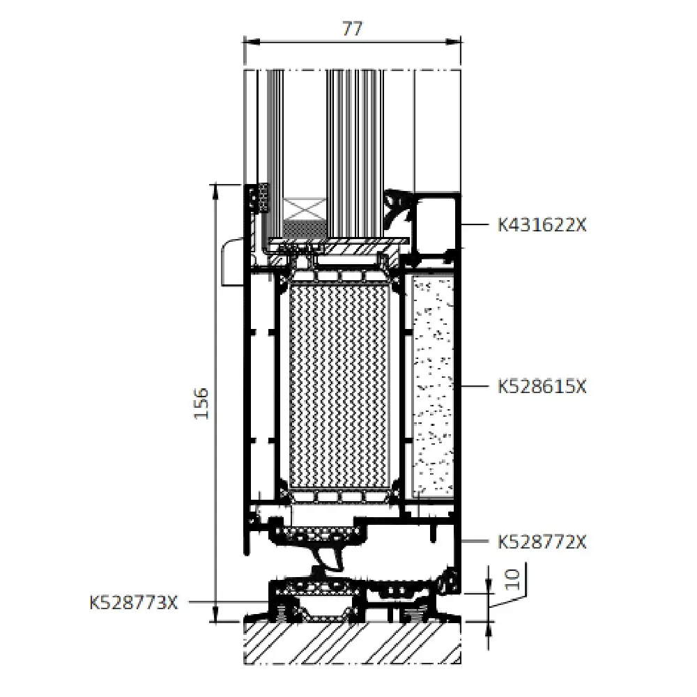
System przeciwpożarowych okien, drzwi i ścianek z izolacją termiczną MB-86N EI służy do wykonywania zewnętrznych przegród przeciwpożarowych wyposażonych w okna otwierane, drzwi i ścianki stałe o głównych klasach odporności ogniowej EI30, EW30, EI15 oraz drzwi w klasie EI60 według normy PN-EN 13501-2. Konstrukcja bazuje na systemie MB-86N, dzięki czemu cechuje ją wysoka izolacyjność termiczna i akustyczna oraz szczelność na wodę i powietrze.

System MB-86N EI łączy w sobie zatem zalety klasycznego systemu okienno-drzwiowego z właściwościami przegród ognioodpornych w zakresie parametrów termicznych, użytkowych wytrzymałościowych oraz technologii produkcji. Wykonana w nim zabudowa spełnia wszelkie wymagania obowiązujących przepisów i norm szczególnie dotyczących oszczędzania energii i ochrony środowiska, zapewniając przy tym odpowiednie bezpieczeństwo pożarowe. System jest sklasyfikowany jako nierozprzestrzeniający ognia (NRO).

Zalety systemu MB-86N EI:

  • Profile o trzykomorowej budowie, gdzie centralną część stanowi komora izolacyjna pomiędzy przekładkami termicznymi o szerokości 43 lub 42 mm,
  • Elementy izolacji ogniowej w komorach wewnętrznych kształtowników aluminiowych oraz specjalne akcesoria i materiały funkcjonujące w przestrzeni pomiędzy kształtownikami aluminiowymi a szkłem,
  • W drzwiach klasy EI2 nie jest wymagane stosowanie elementów izolacji ogniowej w komorach wewnętrznych kształtowników aluminiowych, co wpływa na szybszą prefabrykację i niższą cenę konstrukcji. W zabudowie witrynowej wkłady są wymagane w profilach futryn i poprzeczek.
  • Szeroki zakres grubości możliwych do zastosowania szyb pozwala na stosowanie rożnych rodzajów szkła zespolonego, w tym zestawów dwukomorowych,
  • Okucia stosowane w oknach MB-86N EI standardowo są w klasie antywłamaniowej RC2.
  • Systemy przeciwpożarowe dymoszczelne i oddymiające Aluprof
    7.75 MB / pdf
  • Atest PZH systemy MB
    315.05 KB / pdf
  • Karta produktu
    860.82 KB / pdf

Realizacje obiektów

Villa Metro

Polska, Warszawa

Villa Metro

Kamienica Żelazko

Polska, Poznań

Kamienica Żelazko

61 Ninth Avenue

Stany Zjednoczone, Nowy Jork

61 Ninth Avenue

125 Greenwich Street

Stany Zjednoczone, Nowy Jork

125 Greenwich Street

Proximo

Polska, Warszawa

Proximo

Alchemia II

Polska, Gdańsk

Alchemia II

Ambassador Office Building

Polska, Warszawa

Ambassador Office Building

Sky View Parc

Stany Zjednoczone, Nowy Jork

Sky View Parc

Prime Corporate Center

Polska, Warszawa

Prime Corporate Center

ICE Kraków Congress Centre

Polska, Kraków

ICE Kraków Congress Centre

Hotel Nobu Warsaw

Polska, Warszawa

Hotel Nobu Warsaw

Carbon Tower

Polska, Wrocław

Carbon Tower

Nimbus Office

Polska, Warszawa

Nimbus Office

Wydział Neofilologii Uniwersytetu Gdańskiego

Polska, Gdańsk

Wydział Neofilologii Uniwersytetu Gdańskiego

Millenium Tower IV

Polska, Wrocław

Millenium Tower IV

Muzeum Historii Żydów Polskich

Polska, Warszawa

Muzeum Historii Żydów Polskich

Libra Business Center

Polska, Warszawa

Libra Business Center

Lotnisko Poznań - Ławica

Polska, Poznań

Lotnisko Poznań - Ławica

Międzynarodowe Targi Łódzkie

Polska, Łódź

Międzynarodowe Targi Łódzkie

Waterfront

Polska, Gdynia

Waterfront

Hotel Nobu Warsaw

Polska, Warszawa

Hotel Nobu Warsaw

Carbon Tower

Polska, Wrocław

Carbon Tower

Nimbus Office

Polska, Warszawa

Nimbus Office

Wydział Neofilologii Uniwersytetu Gdańskiego

Polska, Gdańsk

Wydział Neofilologii Uniwersytetu Gdańskiego

Millenium Tower IV

Polska, Wrocław

Millenium Tower IV

Muzeum Historii Żydów Polskich

Polska, Warszawa

Muzeum Historii Żydów Polskich

Libra Business Center

Polska, Warszawa

Libra Business Center

Lotnisko Poznań - Ławica

Polska, Poznań

Lotnisko Poznań - Ławica

Międzynarodowe Targi Łódzkie

Polska, Łódź

Międzynarodowe Targi Łódzkie

Waterfront

Polska, Gdynia

Waterfront