Peso máximo da folha
750 kg
Altura máxima da porta
4 m
Largura do montante na junção das folhas
25 mm
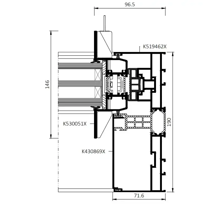
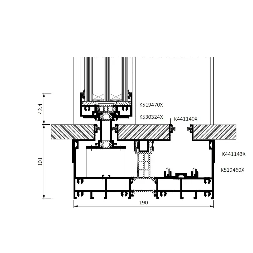
O sistema MB-SKYLINE TYPE S representa uma evolução revolucionária no design arquitetónico. Com perfis finos que se integram perfeitamente às paredes e tetos, e um montante ultraestreito onde as folhas da porta se encontram, este sistema alcança uma estética minimalista e elegante que realça a leveza e a sofisticação de qualquer estrutura. O seu principal destaque é o limiar de porta com fenda completamente oculto, que cria uma transição harmoniosa entre os espaços internos e externos como nunca antes.
No MB-SKYLINE TYPE S, o perfil inferior e os roletes deslizantes estão discretamente embutidos no piso, criando ao nível do limiar uma linha elegante, quase impercetível. Baseado no sucesso comprovado do modelo MB-Skyline, esta versão aprimorada garante qualidade excecional, operação suave e flexibilidade de design inigualável.
Características e benefícios principais:










