Main page
Projects
Limanowa, Poland
Stone office
Object data
Location:
Limanowa, Poland
Category:
Office Buildings
Architects:
MOKAA architekci
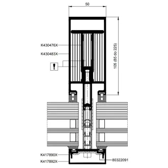
Used systems
MB-SR50N EI
Mullion-transom fireproof curtain wall
See more
MB-SE75
Segment-based façade
See more
MB-SE75 HI
Segment-based façade
See more
Similar objects
Ireland, Dublin
United Kingdom,
see more projects