Hlavní stránka
Realizace
New York, Spojené státy
Brooklyn Navy Yard, Dock 72
Data objektu
Poloha:
New York, Spojené státy
Kategorie:
Administrativní budovy
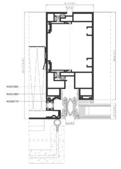
Použité systémy
Zobrazit více
Podobné objekty
Kennedy Quay
Irsko,
Bottleworks
Irsko,
zobrazit další projekty