Hlavní stránka
Realizace
New York, New York, Spojené státy
The Greenwich
Data objektu
Poloha:
New York, New York, Spojené státy
Kategorie:
Víceúčelové objekty
Architekti:
Rafael Viñoly Architects
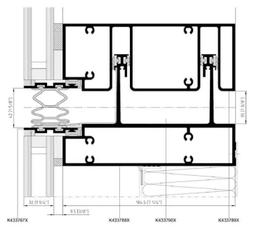
Použité systémy
MB-77HS
Posuvně-zdvižné dveře
Zobrazit více
Zobrazit více
MB-SR60N
Fasáda sloupko-příčková s vysokou tepelnou izolací
Zobrazit více
Podobné objekty
Zespół mieszkaniowo-usługowy DOKI
Polsko, Gdaňsk
Dudley House and Marylebone Boys’ School
Spojené království, Londýn
zobrazit další projekty