Air permeability
AE 1200 Pa
Watertightness
RE 1200 Pa
Wind load resistance
±2000 Pa
Thermal insulation
UCW < 0,9 W/(m²K)
The MB-SE65 is a technologically advanced unitised curtain wall system with excellent thermal insulation. It stands out for its versatility of applications, high technical performance, and streamlined prefabrication, offering a modern approach to creating façades in prestigious buildings.
The MB-SE65 curtain wall is the result of experience gained from constructing high-rise buildings in the United States and Europe. It has been designed for lightweight, suspended curtain walls. The structure consists of modules that are entirely prefabricated in a production facility, which brings many advantages. Among these, the high quality of the fabricated components stands out, as they are produced under optimal conditions, where the manufacturer has full control over the entire process. The installation of such façades is extremely fast and eliminates the need for scaffolding on-site.
An element of great design
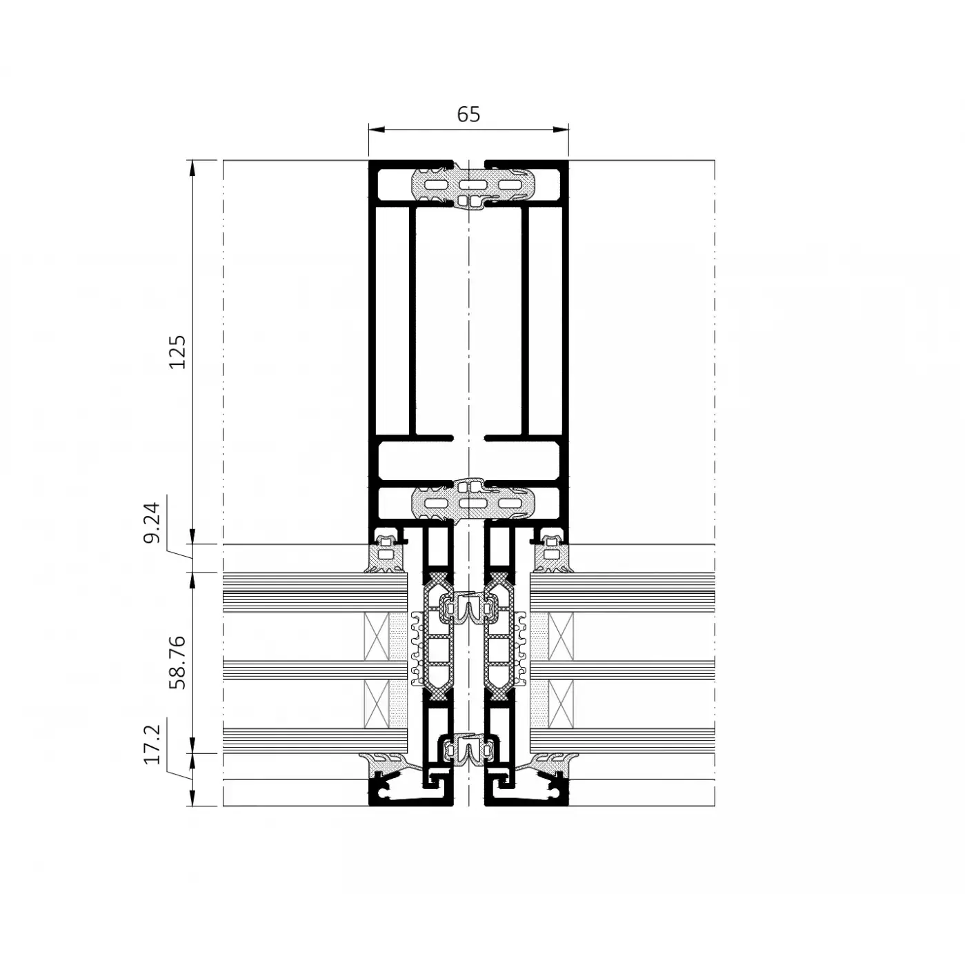
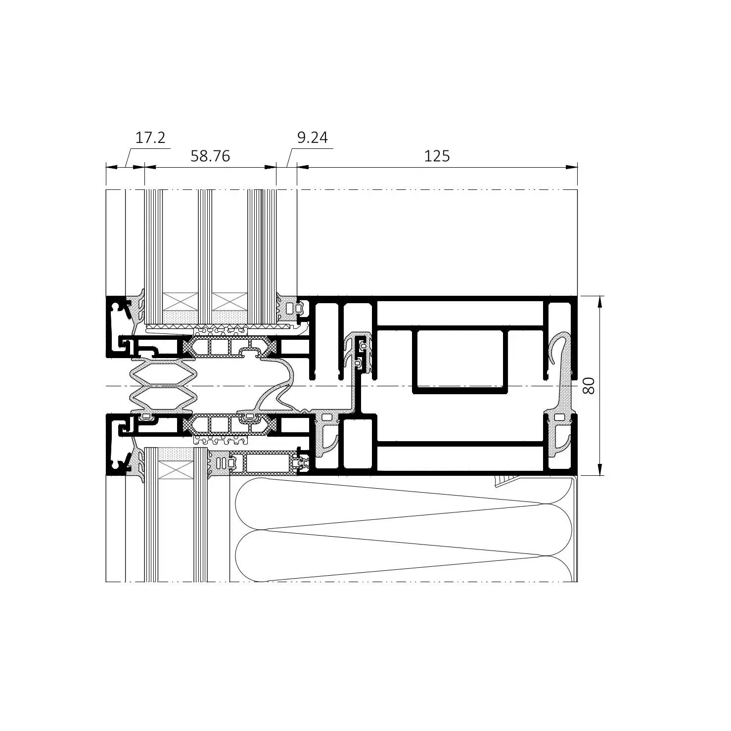
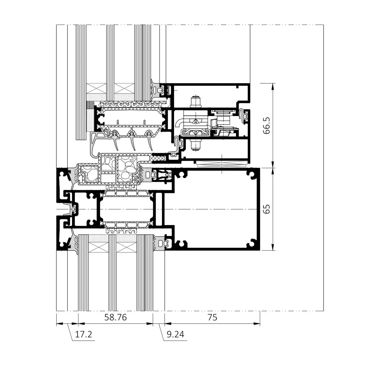
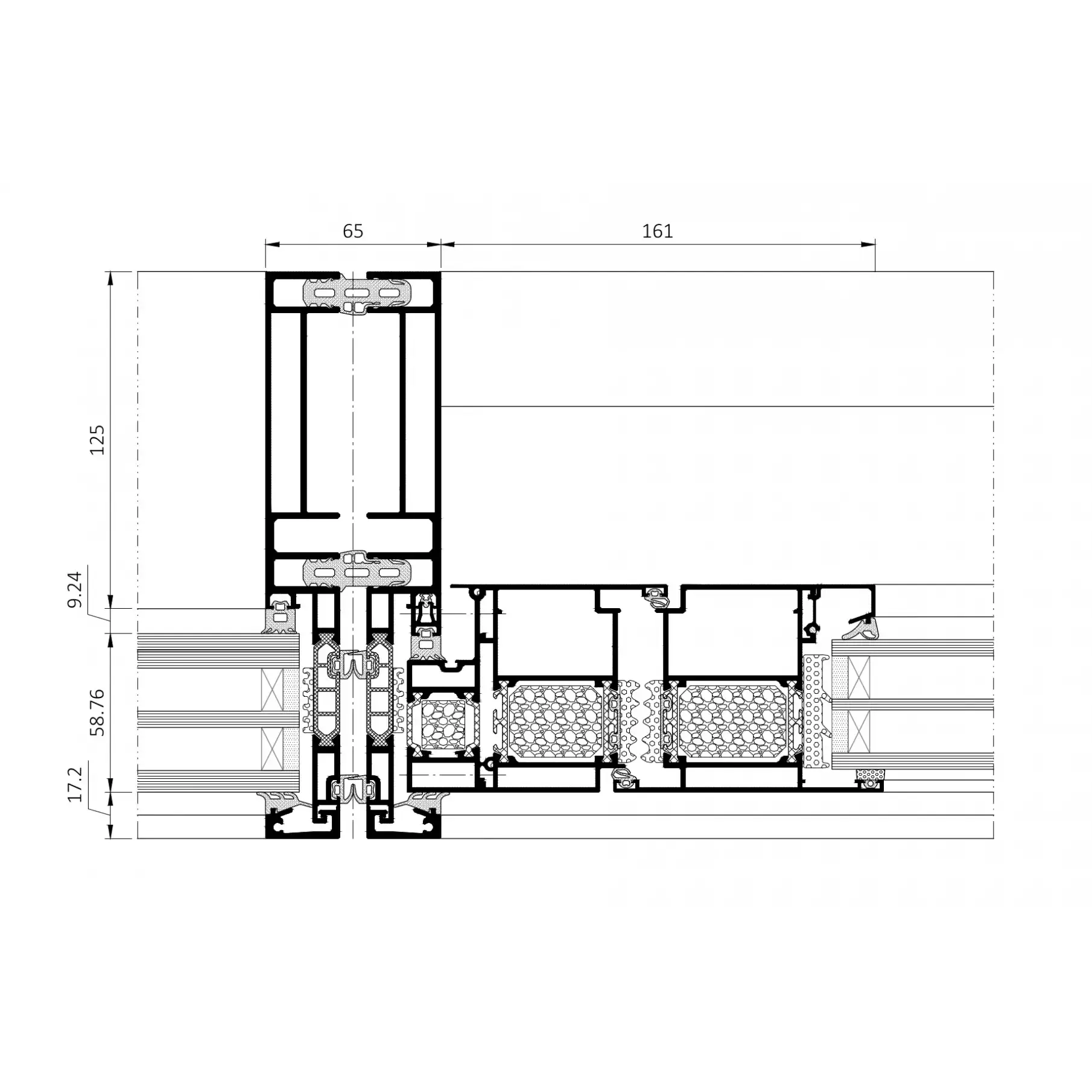
Diversity, flexibility, and originality—these words perfectly capture the design possibilities of the MB-SE65 façade, as design here comes in many forms. The slim external profiles are only 65 mm wide, giving the wall a visually lightweight appearance. The option for traditional glazing with caps or structural glazing allows architects to explore their creative freedom. The façade accommodates a wide range of glass units by selecting the appropriate thermal break. Thanks to factory prefabrication, non-standard segments can also be shaped, including those fitted with decorative external profiles such as fins or blades. Nothing prevents the creation of double segments either. The MB-SE65 façade allows for the seamless integration of both standard windows (MB-79N, MB-86N) and façade windows (MB-SR50N OW HI+).
An element of advanced technology The MB-SE65 system incorporates technologically advanced solutions that make the façade stand out in the market of unitised curtain walls. An excellent example is the use of special connectors with glue distribution control at the corners, ensuring high stiffness and tightness of the connection while maintaining the right angle of the joined profiles. Significant compensation of horizontal (±3 mm) and vertical (±12 mm) movements is achieved using expansion joints, which ensure the correct operation of the structure. An additional advantage is their ability to compensate for dimensional tolerances of the elements.
An element of outstanding performance The introduced technical solutions translate into excellent parameters achieved by the MB-SE65 façade during laboratory testing. These results demonstrate that the system performs perfectly in various weather conditions, making it suitable for projects around the world.
Technical data for MB-SE65:
Advantages of MB-SE65 for manufacturers:
Advantages of MB-SE65 for architects:
Advantages of MB-SE65 for developers:








