Ilmanläpäisevyys
jopa 6,24 psf (49 mph)
Vedenpitävyys
jopa 12 psf
Dynaaminen vedenkestävyys
jopa 12 psf
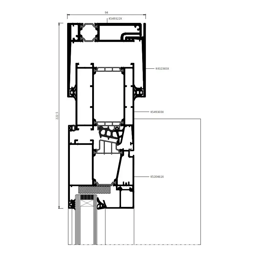
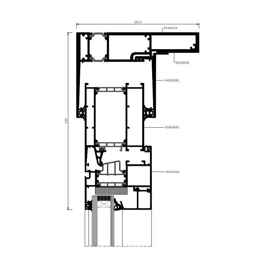
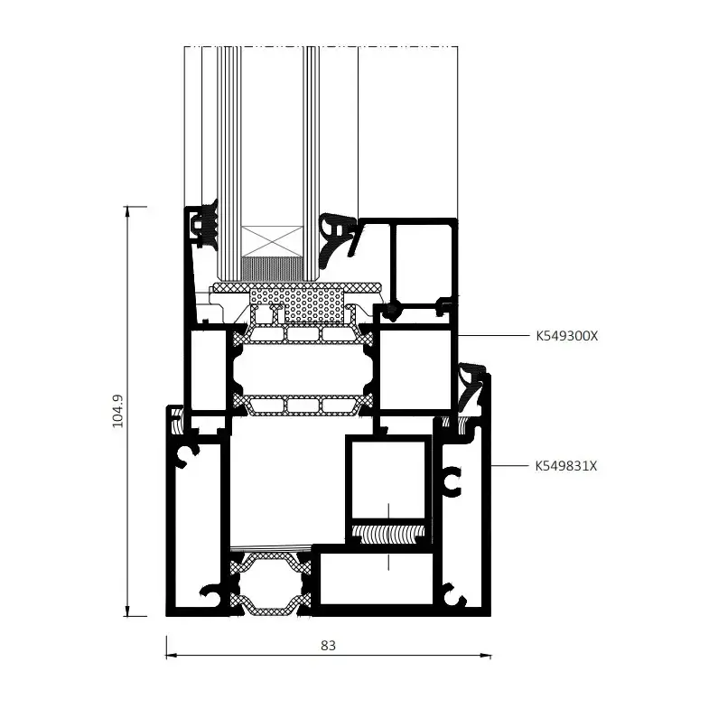
ALUPROF MB-79N WW Window Wall -järjestelmä on edistynyt ratkaisu, joka on suunniteltu erityisesti Yhdysvaltain markkinoille, missä window wall -ratkaisut ovat erittäin suosittuja. Näitä lasipaneeleja asennetaan yleensä betonilaattojen väliin keskikorkeissa ja korkeissa rakennuksissa. MB-79N WW mahdollistaa laajojen lasipintojen suunnittelun ja rakentamisen valmiiksi valmistetuista ikkunasegmenteistä. Järjestelmä pääsee parhaiten oikeuksiinsa, kun se asennetaan lattiasta kattoon, luoden vaikuttavia, täysin läpinäkyviä pintoja.
Tämä täydellinen ja monikäyttöinen järjestelmä perustuu ALUPROF hyväksi todettuihin ratkaisuihin, kuten suosittuun MB-79N-tuoteperheeseen kuuluviin profiileihin ja lämpökatkoihin. Yksi järjestelmän merkittävimmistä eduista on yläkehys, joka kompensoi betonilaattojen liikkeitä jopa +/-25,6 millimetriä (noin 1 tuuma). Lähtöprofiilit ovat saatavilla eri syvyyksillä, välillä 83–307 millimetriä. MB-79N WW -järjestelmällä rakennetut laajennusseinät voidaan varustaa kiinteillä ikkunoilla, sisään- tai ulospäin avautuvilla parveke-/patiovaluilla sekä vakio- tai laajennettavilla pilareilla. Kaksi merkittävää etua ovat lyhyt asennusaika ja erittäin pieni työntekijämäärä, joka tarvitaan asennukseen. Tämä on mahdollista, koska työprosessi voidaan jakaa vaiheisiin: ensin asennetaan lähtö- ja laajennusprofiilit, minkä jälkeen ikkunat kiinnitetään erikoisvalmisteisilla kiinnikkeillä. Lisäksi laajennusseinät asennetaan rakennuksen sisäpuolelta, sopivalla etäisyydellä betonilaatoista.
Ensimmäiset projektit, joissa käytetään MB-79N WW -järjestelmää, sijaitsevat Brooklynissa, New Yorkissa: asuinrakennukset osoitteissa 210 Clarkson Avenue ja 2840 Atlantic Avenue. Toinen merkittävä esimerkki on 625 Fulton Street -monitoimirakennus. Tämä vaikuttava, 35-kerroksinen torni, jonka korkeus ylittää 150 metriä (500 jalkaa), sijaitsee Brooklynin sydämessä. Rakennus tarjoaa 1 098 asuntoa sekä 26 000 neliömetriä kaupallista tilaa.






