Paloluokitellut järjestelmät

Paloluokitellut järjestelmät

-

Laaja valikoima Aluprofin tarjoamia järjestelmiä helpottaa suunnittelemaan eilaisia rakenteita jotka vastaavat rakennusten "palosuojavaatimuksiin" ja tarjoavat oikeat olosuhteet asukkaiden hätäpoistumiselle palotilanteessa.Näihin ratkaisuihin kuuluu sekä ikkunaseinä- että ovijärjestelmävaihtoehtoja sekä listaton lasiseinäjärjestelmä. Käytettävä järjestelmä riippuu kohteen vaatimuksista, järjestelmiä löytyy moneen eri paloluokkaan, EI 15:sta aina EI 120luokkaan saakka. Kattolasituksiin löytyy luokat REI30 ja RE45.

Seuraavat ratkaisut, jotka on luokiteltu yleisten palonestoominaisuuksiensa mukaan, vastaavat rakennuksen asukkaiden turvallisuudesta tulipalon aikana: MB-78EI sisä- ja ulkoväliseinät ja -ovet (luokat EI 15 - EI 90), MB-78EI DPA automaattiliukuovet (EI 30), MB-118EI palolasiseinät (EI 120), MB-SR50N EI lasiseinät (luokat EI 15 - EI 60), ja MB-SR50N EI EFEKT lasiseinät ( luokat EI60), lasitetut palokatot (REI30 / RE45), MB-45D savutiiviit ovi- ja savunpoistoikkunat ja -luukut.

Tärkeä ominaisuus Aluprofin paloturvallisissa järjestelmissä on niiden yhteensopivuus toisiinsa säilyttäen samalla tarvittavan palonkestävyyden. Tämä on testattu integroimalla MB-78EI-ovi MB-SR50 EI- ja MB-SR50N EI-lasiseinään, ja koko rakenne saavutti yhteisen EI 30- tai EI 60 -luokan suorituskyvyn. MB-78EI-ovi voidaan integroida myös MB-118EI-seinäjärjestelmään.

MB-86N EI
MB-86N EI
Paloluokitellut ikkunat, ovet ja väliseinät luokassa EI30, ovet luokassa EI60
  • Vesitiiviys
    Luokka E 1500 Pa | EN 12208
  • Lämmöneristyskyky
    Uw alkaen 0,86 | W/(m2K)
  • Ilmanläpäisevyys
    Luokka 4 | EN 12207
  • Palonkestävyys
    Luokka EI30 | EN 13501-2:2016-07
  • Ulkopuolet ovet
  • Ulkoseinät
  • EI 15
  • EI 30
  • EI 60
  • Kääntöovet
  • Äänieristys
MB-60E EI
MB-60E EI
Paloeristeiset väliseinät ovilla luokka EI15, EI30
  • Rakenteet luokissa
    EI30 | EN 13501-2
  • Savutiiviys
    Sa, S200 |
  • Itsesulkeutuvuus
    C5 | EN 1191 |
  • Sisäpuolet ovet
  • EI 30
  • EI 15
  • Sisäseinät
  • Kääntöovet
MB-86 EI
MB-86 EI
Järjestelmä paloluokitetuille ikkunoille, oville ja lasiseinille luokkiin EI15, EW30, EI30
  • Sateenpitävyys
    luokka E 1500 Pa | EN 12208
  • Lämmönläpäisykerroin UW
    alkaen 0,86 | W/(m2K)
  • Ilmanpitävyys
    luokka 4 | EN 12207
  • Paloluokitus
    luokka EI30 | EN 13501-2:2016-07
  • Äänieristys
  • EI 30
  • EI 15
  • Ulkoseinät
  • Kääntöovet
  • Ulkopuolet ovet
MB-118EI
MB-118EI
Paloluokitetut väliseinät EI120
  • Ilmanpitävyys
    luokka A4
  • Sateenpitävyys
    luokka RE 750
  • Paloluokitus
    luokka EI120
  • Ulkoseinät
  • Sisäseinät
  • EI 120
MB-78EI DPA
MB-78EI DPA
Automaattiset palo-liukuovet
  • Thermal insulation Uf
    > 1,62 | W/(m2K)
  • Paloluokat
    EI15, EI30
  • Liukuva
  • EI 30
  • EI 15
  • Liukuovet
  • Sisäpuolet ovet
MB-78EI
MB-78EI
Palonkestävät väliseinät ovilla luokissa EI15–EI90
  • Palonkestävyys
    EI 15:stä EI 90:een | EN 13501-2:2016-07
  • Savutiiviys
    Sa3 , S200 | EN 13501-2:2016-07
  • Ääneneristys
    RW up to 41dB
  • Itsesulkeutuvuus
    C5 | EN 1191:2013-06
  • Savunpoisto
  • EI 90
  • Äänieristys
  • Ulkopuolet ovet
  • Sisäpuolet ovet
  • Kääntöovet
  • Ulkoseinät
  • Sisäseinät
  • Kulkuikkunat
  • EI 15
  • EI 30
  • EI 60
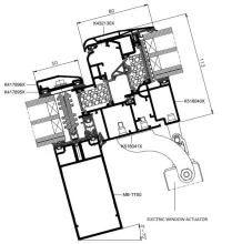
Savunpoistoikkunat ja -luukut
Savunpoistoikkunat ja -luukut
Paloläpät, palo-kattoikkunat
  • Ikkunan avattavan puitteen enimmäismitat (vaakasuora asettelu)
    L enintään 2500 mm, K enintään 1600 mm
  • Ikkunan avattavan puitteen enimmäismitat (pystysuora asettelu)
    L enintään 1600 mm, K enintään 2500 mm
  • Kattikkunan avattavan puitteen enimmäismitat
    L enintään 1500 mm, K enintään 2200 mm
  • Automaattinen käyttö
  • Lämpöeristetyt ikkunat
  • Ikkunat
MB-SR50N EI, MB-SR50N EI EFEKT
MB-SR50N EI, MB-SR50N EI EFEKT
Palonkestävä pysty-vaaka lasiseinä
  • Ilmanpitävyys
    luokka AE 1050 Pa | PN-EN 12152
  • Sateenpitävyys
    luokka RE1200 | PN-EN 12154
  • Lämmönläpäisykerroin Uf
    >1,8 | W/(m2K)
  • Palonkestävyysluokat
    EI30 ja EI60 | EN 13501-2
  • Julkisivut
  • Ulkoseinät
  • EI 30
  • EI 60