2023-03-28

Nowe rozwiązania do montażu okien i drzwi w fasadzie MB-SR50N EFEKT

Nowe rozwiązania do montażu okien i drzwi w fasadzie MB-SR50N EFEKT

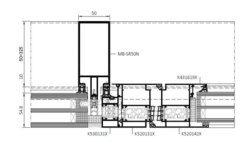
Wprowadziliśmy nowe rozwiązania służące do montażu okien i drzwi w ścianach słupowo-ryglowych systemu MB-SR50N EFEKT.

Umożliwiają one zastosowanie konstrukcji systemów MB-79N, MB-86N oraz MB-77HS. Połączenia te bazują na ościeżnicach fasadowych okien oraz odpowiednich profilach adaptacyjnych dla drzwi i zapewniają łatwą prefabrykację oraz uzyskanie wysokiej szczelności połączenia.
Wodoszczelność okna wpiętego w ten sposób w fasadę wynosi 1200 Pa, natomiast wodoszczelność drzwi jednoskrzydłowych - 900 Pa. Szczegółowe informacje techniczne o tych rozwiązaniach znajdą Państwo w katalogu systemu MB-SR50N EFEKT w strefie autoryzowanej.

Galeria

Pozostałe aktualności