Thermal insulation Uf
> 1,5 | W/(m2K)
Air tightness window
class 4
Watertightness
class E1200
Wind tightness
class C5








MB-70 is a modern aluminium system designed for exterior architectural building elements requiring thermal and acoustic insulation. The system can be fabricated to offer numerous types of windows, doors, vestibules, display windows or spatial structures.
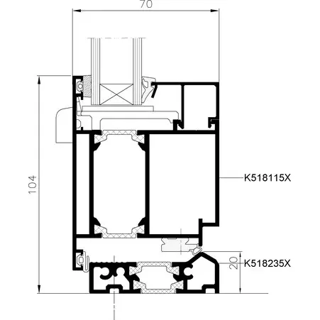
System profiles have a three-chamber structure. The structural depth of the window sections is 70 mm for outer frames and 79 mm for vent frames, with doors 70 mm and 70 mm respectively. With the faces of the vent and frame in alignment the system offers clean aesthetic lines once closed, it is also possible to produce window vents with a hidden casement option. The slim sight lines of the MB-70US and MB-70 “Industrial”, is often specified for refurbishment of post-industrial, historic and monumental or iconic landmark buildings.
The MB-70 system offers a very low value of overall heat-transfer coefficient, Uf, thanks to application of advanced thermal breaks and gaskets. The value of heat transfer coefficient for the MB-70 system, depending on the profiles and accessories specified, ranges between 1.5 and 2.39 W/m2K. The profiled "omega"-shaped thermal breaks are applied are 34 mm wide on the window system and 24 mm in the door system and are made from polyamide reinforced with glass fibres. The shape of these thermal breaks increases the profile rigidity compared to flat thermal breaks and improves profile drainage, ensuring the thermal insulation in all atmospheric conditions. The thermal breaks designed in the windows have additional gaskets at profile joints offering triple chamber insulation for excellent thermal properties.
With the adoption of these thermal break profiles and gasket arrangements, it is not necessary to fill the space between profiles with polyurethane foam or foamed styrene inserts, in order to increase thermal insulation. Air tightness is ensured by the use of special gaskets made of two-component EPDM synthetic rubber, both solid and cellular, as well as excellent thermal insulation. MB-70 is the first system in which this type of material has been used for designing the central gasket.
The system allows glazing options between 21 mm and 57 mm thickness in window casements, and from 12 mm to 48 mm in fixed windows and doors.
A wide choice of colours in powder coating and anodising offers the specifier flexible design options.
Furthermore, the MB-70 system forms the basis for additional solutions featuring an enhanced thermal insulation performance, such as: MB-70HI, MB-70US HI and for a curtain walling, MB-70CW HI windows.
This system is available as PAS 24 constructions .



