MB-SG60

Hőszigetelés Uf

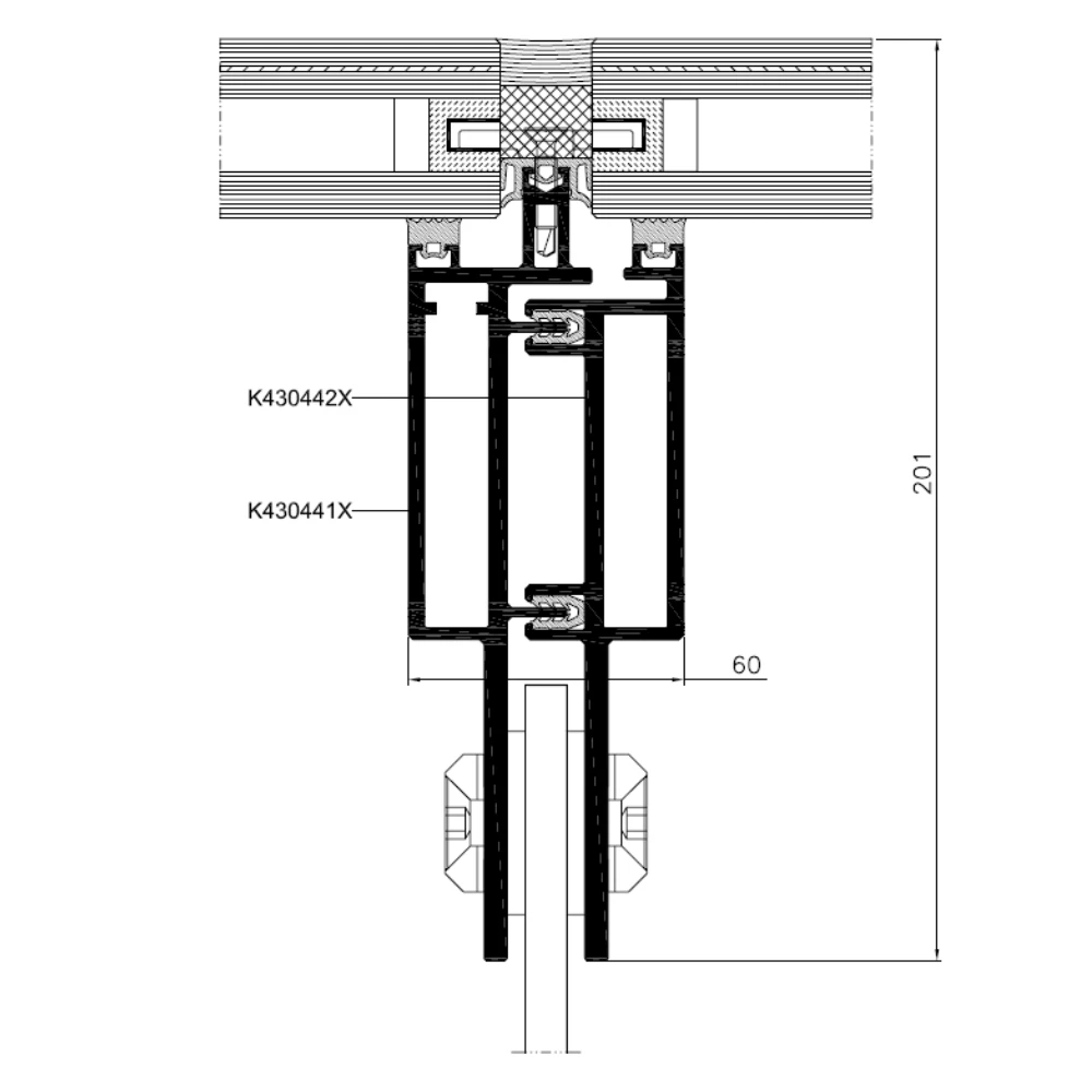
1,64 | W/(m2K)

A függöny burkoló fal megfordított szerkezeti üvegezéssel. A homlokzat szerkezetét megfordított függönyfal rendszer alkotja, ún. kívül elhelyezett teherhordó alumínium profilok, míg a helység oldaláról egy lapos üvegfelület látható, amely szerkezeti üvegezés technológiával készült.

A homlokzat dőlésszöge függőlegesen kifelé 10o. A bordák és keresztlécek látható külső szélessége 60 mm. A függönyfal váz elemi szerkezetként lett megtervezve, tehát minden előkészületi, csatlakoztatási munka a gyártóműhelyben készül. A keresztlécek speciális alumínium kötőelemek és erősítő kötőcsavarok segítségével vannak összekapcsolva a félbordákkal, ami nagyon merev keretet ad, miközben lehetővé teszi a megfelelő vízszintes hődilatáció kompenzálását. A függőleges hődilatáció speciális borda-borda kapcsolóval van megvalósítva. A rendszerben összekapcsolt vízkivezetés és szellőztetés került alkalmazásra, ún. a borda és keresztléc profilok vízkivezető csatornái össze vannak kapcsolva egymással és ezenkívül minden mező közepén vízkivezető-szellőzető nyílás található.

A profil nagyon magas hőszigetelés biztosítására a rendszerbe speciális anyagból készült szigetelő lett bevezetve, amelynek köszönhetően a keret Uf hőszigetelési együtthatója 1,64 [W/ m2K]. Emellett speciális központi tömítés került bevezetésre, amelyik jelentősen javítja a térelhatároló hangszigetelését és további tömítő feladatokkal van ellátva.

A mezőt kitöltő elemek szerkezeti üvegezési rendszerben állandó üvegezéssel (egyesített üveg). A szilikonos fúgák szélessége 20 mm. A rendszer 39 mm vastagságú hőszigetelt átlátszó egységekkel való tömítésre vannak kialakítva.

A rendszer a varsói Fryderyk Chopin Repülőtér számára lett kidolgozva. A belőle megvalósított pirsu homlokzat a +5.30 szinttől teljes egészében döntött függőnyfalként lett elkészítve. Mind a bordák, mind pedig a keresztlécek speciálisan, egyénileg lettek elkészítve a létesítmény igényei szerint. A bordák állandó modulusként 2400 mm kerülnek elhelyezésre. A homlokzat szerkezete a T-alakú acélelemek külső oldalán található alumínium konzolok segítségével vannak felerősítve. Az épület sarkai teljes üvegként vannak elkészítve.

Projektjeink

Villa Metro

Lengyelország, Varsó

Villa Metro

Kamienica Żelazko

Lengyelország, Poznań

Kamienica Żelazko

Nobu Hotel

Lengyelország, Varsó

Nobu Hotel

61 Ninth Avenue

Egyesült Államok, New York

61 Ninth Avenue

125 Greenwich Street

Egyesült Államok, Nowy Jork

125 Greenwich Street

Proximo

Lengyelország, Warszawa

Proximo

Alchemia

Lengyelország, Gdańsk

Alchemia

Ambassador Office Building

Lengyelország, Varsó

Ambassador Office Building

Sky View Parc

Egyesült Államok, New York

Sky View Parc

Prime Corporate Center

Lengyelország, Varsó

Prime Corporate Center

Carbon Tower

Lengyelország, Wrocław

Carbon Tower

Nimbus Office

Lengyelország, Varsó

Nimbus Office

Wydział Neofilologii Uniwersytetu Gdańskiego

Lengyelország, Gdańsk

Wydział Neofilologii Uniwersytetu Gdańskiego

Millenium Tower IV

Lengyelország, Wrocław

Millenium Tower IV

Muzeum Historii Żydów Polskich

Lengyelország, Varsó

Muzeum Historii Żydów Polskich

Libra Business Center

Lengyelország, Varsó

Libra Business Center

Lotnisko Poznań - Ławica

Lengyelország, Poznań

Lotnisko Poznań - Ławica

Międzynarodowe Targi Łódzkie

Lengyelország, Łódź

Międzynarodowe Targi Łódzkie

Waterfront

Lengyelország, Gdynia

Waterfront

Silver Tower

Lengyelország, Wrocław

Silver Tower

Carbon Tower

Lengyelország, Wrocław

Carbon Tower

Nimbus Office

Lengyelország, Varsó

Nimbus Office

Wydział Neofilologii Uniwersytetu Gdańskiego

Lengyelország, Gdańsk

Wydział Neofilologii Uniwersytetu Gdańskiego

Millenium Tower IV

Lengyelország, Wrocław

Millenium Tower IV

Muzeum Historii Żydów Polskich

Lengyelország, Varsó

Muzeum Historii Żydów Polskich

Libra Business Center

Lengyelország, Varsó

Libra Business Center

Lotnisko Poznań - Ławica

Lengyelország, Poznań

Lotnisko Poznań - Ławica

Międzynarodowe Targi Łódzkie

Lengyelország, Łódź

Międzynarodowe Targi Łódzkie

Waterfront

Lengyelország, Gdynia

Waterfront

Silver Tower

Lengyelország, Wrocław

Silver Tower

Welcome to Aluprof

Your location

United States