Sistemi tagliafuoco

Sistemi tagliafuoco

-

L’ALUPROF propone i sistemi antifumo e antincendio che permettono di realizzare diversi elementi strutturali responsabili dell’organizzazione negli edifici delle zone incendio che garantiscono le condizioni adeguate per l’evacuazione delle persone. Le soluzioni di cui sopra comprendono sia i prodotti che strutturalmente sono collegati con il gruppo dei sistemi di porte e finestre, che quelli che si basano sui sistemi di facciate a montanti e traversi. La resistenza al fuoco di questo tipo di costruzione è compresa nelle classi da EI15 a EI120, a seconda dei requisiti per le strutture verticali. Invece per i tetti la classe di resistenza al fuoco è la REI30 / RE45.

Al gruppo di prodotti responsabili per la sicurezza degli abitanti di un edificio in caso di incendio appartengono le seguenti soluzioni:

  • sistema MB-78EI che include paratie divisorie fisse e porte a battente con classe di resistenza al fuoco EI15 do EI90
  • pareti antincendio senza listelli divisori MB-78EI con classe di resistenza al fuoco EI30 e EI60
  • porte automatiche scorrevoli antincendio MB-78EI DPA con classe di resistenza al fuoco EI30
  • sistema MB-118EI che permette di realizzare le pareti con classe di resistenza al fuoco EI120.
  • facciate continue antincendio con montanti e traversi MB-SR50N EI con classe di resistenza al fuoco EI15 a EI60
  • tetti vetrati antincendio con classe REI30 / RE45, basati sui sistemi di facciate con montanti e traversi
  • porte antifumo MB-45D con classe S200 e Sa

Finestre e evacuatori di fumo sono i prodotti che appartengono anche al gruppo di soluzioni che garantiscono la sicurezza delle persone in caso di incendio. Si basano sui principali sistemi di finestre e porte della serie MB e sulle soluzioni per tetti o per finestre a vasistas che sono utilizzate esclusivamente nelle strutture a facciata.

L’ALUPROF offre ancora una soluzione interessante dal punto di vista di progettazione delle pareti divisorie tagliafuoco, ovvero la possibilità di unire insieme varie strutture, pur mantenendo la classe di resistenza al fuoco adeguata. A titolo di esempio possiamo indicare la porta antincendio del sistema MB-78EI incassata nella facciata. La struttura realizzata come sopra può avere la classe di resistenza al fuoco EI30 o EI60. Una possibilità simile di incorporazione della porta MB-78EI esiste nel sistema di pareti antincendio MB-118EI.

Invitiamo a prendere visione dell’offerta dettagliata di soluzioni antincendio offerte dalla ALUPROF.

I nomi ed i simboli dei suddetti prodotti costituiscono un link interno alla pagina che contiene le informazioni dettagliate su tali prodotti.

MB-86N EI
MB-86N EI
Finestre, porte e pareti tagliafuoco classificate EI30, porte classificate EI60
  • Tenuta all’acqua
    Classe E 1500 Pa | EN 12208
  • Prestazioni termiche
    Uw a partire da 0,86 | W/(m2K)
  • Permeabilità all’aria
    Classe 4 | EN 12207
  • Resistenza al fuoco
    Classe EI30 | EN 13501-2:2016-07
  • Porte esterne
  • Partizioni esterne
  • EI 15
  • EI 30
  • EI 60
  • Porte a battente
  • Protezione acustica
MB-60E EI
MB-60E EI
Pareti divisorie antincendio con porta classe EI15, EI30
  • Costruzioni nelle classi
    EI30 | EN 13501-2
  • A prova di fumo
    Sa, S200 |
  • Chiusura automatica
    C5 | EN 1191 |
  • Porte interne
  • EI 30
  • EI 15
  • Partizioni interne
  • Porte a battente
MB-86 EI
MB-86 EI
Finestre, porte e pareti ignifughe di classe EI15, EW30, EI30
  • Tenuta stagna
    classe E 1500 Pa | EN 12208
  • Isolamento termico UW
    da 0,86 | W/(m2K)
  • Permeabilità all’aria
    classe 4 | EN 12207
  • Resistenza al fuoco
    classe EI30 | EN 13501-2:2016-07
  • Protezione acustica
  • EI 30
  • EI 15
  • Partizioni esterne
  • Porte a battente
  • Porte esterne
MB-118EI
MB-118EI
Divisorie antincendio classe EI120
  • Permeabilità all’aria
    classe A4
  • Tenuta stagna
    classe RE 750
  • Resistenza al fuoco
    classe EI120
  • Partizioni esterne
  • Partizioni interne
  • EI 120
MB-78EI DPA
MB-78EI DPA
Porta tagliafuoco scorrevole automatica
  • Isolamento termico Uf
    > 1,62 | W/(m2K)
  • Lezioni di fuoco
    EI15, EI30
  • Scorrevole
  • EI 30
  • EI 15
  • Porte scorrevoli
  • Porte interne
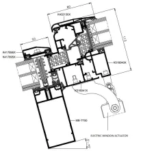
MB-78EI
MB-78EI
Divisorie antincendio con porte di classe EI15 fino a EI90
  • Classi di resistenza al fuoco
    da EI 15 a EI 90 | EN 13501-2:2016-07
  • Tenuta al fumo
    Sa3 , S200 | EN 13501-2:2016-07
  • Isolamento acustico
    RW fino a 41dB | dB
  • Chiusura automatica
    C5 | EN 1191:2013-06
  • Ventilazione fumo
  • EI 90
  • Protezione acustica
  • Porte esterne
  • Porte interne
  • Porte a battente
  • Partizioni esterne
  • Partizioni interne
  • Finestre di accesso
  • EI 15
  • EI 30
  • EI 60
Finestre e botole di evacuazione fumi
Finestre e botole di evacuazione fumi
Serrande tagliafuoco, lucernari antincendio
  • Dimensioni massime dell’anta finestra (configurazione orizzontale)
    L fino a 2500 mm, H fino a 1600 mm
  • Dimensioni massime dell’anta finestra (configurazione verticale)
    L fino a 1600 mm, H fino a 2500 mm
  • Dimensioni massime dell’anta finestra da tetto
    L fino a 1500 mm, H fino a 2200 mm
  • Azionamento automatico
  • Con isolamento termico
  • Finestre
MB-SR50N EI, MB-SR50N EI EFEKT
MB-SR50N EI, MB-SR50N EI EFEKT
Sistema tagliafuoco per facciate
  • Permeabilità all’aria
    classe AE 1050 Pa | PN-EN 12152
  • Tenuta stagna
    classe RE1200 | PN-EN 12154
  • Isolamento termico Uf
    >1,9 | W/(m2K)
  • Classi di resistenza al fuoco
    EI30 e EI60 | EN 13501-2
  • Facciate
  • Partizioni esterne
  • EI 30
  • EI 60