- Offerta
- Realizzazioni
- Download
- Formazione
- Zona autorizzata
- Showroom
- Blog
- Chi siamo
- Contatto
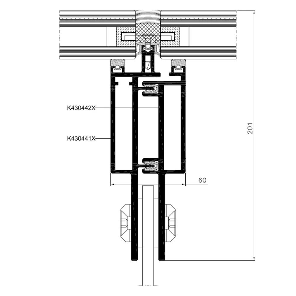
Isolamento termico Uf
1,64 | W/(m2K)
Facciata continua a montanti e traversi rovesciata con invetriatura strutturale. La struttura della facciata è formata dal sistema a montanti e traversi rovesciata, ovvero i profili portanti in alluminio (montanti e traversi) sono posizionati all’esterno, invece dal lato dell’ambiente interno si vede la superficie di vetro liscia, realizzata in tecnologia di invetriatura strutturale.
L'angolo di inclinazione della facciata dal piano verticale: 10° all’esterno. La larghezza esterna visibile di montanti e traversi è di 60 mm. L’ossatura di montanti e traversi è progettata come una costruzione strutturale e pertanto tutti i lavori di preparazione e di accoppiamento sono realizzati nel nostro cantiere. I traversi sono collegati con i mezzi montanti tramite giunti speciali in alluminio e viti di stabilizzazione, garantendo un telaio rigido e al contempo una corretta compensazione della dilatazione termica orizzontale. La dilatazione termica verticale è ottenuta grazie a un raccordo speciale montante-montante. Il sistema utilizza lo schema unito di drenaggio e ventilazione, ovvero i canali di drenaggio nei profili dei montanti e traversi sono uniti tra di loro e in più, all’interno di ciascun inquadro, viene realizzato un foro di drenaggio e ventilazione.
Per garantire un alto isolamento termico di profili il sistema utilizza l’isolatore realizzato in un materiale speciale, grazie a cui Uf per il telaio è pari a 1,64 [W/ m2K]. In aggiunta, è prevista una guarnizione centrale speciale che migliora notevolmente l’isolamento acustico della paratia e la tenuta. Gli elementi di riempimento saranno realizzati utilizzando le invetriature fisse (vetrocamera) in sistema di invetriatura strutturale. La larghezza di giunti di silicone è di 20 mm. Il sistema è predisposto ad essere riempito con i kit di isolamento traslucidi dello spessore di 39 mm.
Il sistema è stato disegnato per le necessità di Aeroporto Fryderyk Chopin di Varsavia. La facciata di Pirs dal livello +5.30 è realizzata completamente come la facciata continua inclinata. Sia montanti che traversi sono stati progettati secondo il progetto individuale. I montanti sono posizionati a moduli fissi ogni 2400 mm. La struttura della facciata è fissata tramite supporti in alluminio ai profilati a T in acciaio posizionati all’esterno. Gli angoli dell’edificio saranno realizzati completamente in vetro.


