Luchtdoorlatendheid
klasse 3 | PN-EN 12207:2001
Waterdichtheid
klasse 5A | PN-EN 12208:2001
Windweerstandsklasse
klasse C2 / B2 | PN-EN 12210:2016
Thermische isolatie Uf
> 1,9 | W/(m2K)

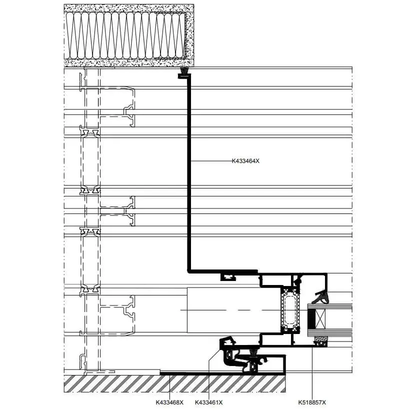
Het systeem MB-59 Slide Galandage is gebaseerd op oplossingen van het systeem MB-59 Slide en is bedoeld voor het vervaardigen van schuifdeuren met thermische isolatie, waarvan de deurvleugel tijdens het openen in de muur verdwijnt.
Zodanig tot stand gekomen deuren doen de grens tussen het woongedeelte van het huis en het terras of de tuin volledig verdwijnen. De MB-59 Slide Galandage systeemprofielen beschikken over twee constructievarianten met verschillende thermische isolatie: ST en HI. Binnen de beschikbare profielen zijn kozijnen met twee en drie rails beschikbaar. Dankzij het brede scala aan beschikbare beglazing kan dubbel of driedubbel glas worden ingezet, desgewenst met akoestische en anti-inbraakeigenschappen.
EIGENSCHAPPEN EN VOORDELEN:




