- Ofertă
- Realizarile
- Descărcări
- Pregătire
- Zonă autorizată
- Showroom
- Blog
- Despre companie
- Contact
Permeabilitatea la aer
AE 1200 Pa
Impermeabil
RE 1200 Pa | EN 12154
Rezistența la impact
I5/E5 | EN 14019
Izolarea termică
Uf de la 0,59 | W/(m2K)





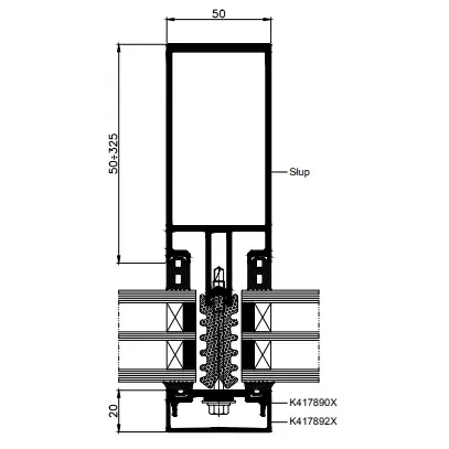
Sistemul de fațadă tip montant-traversă MB-SR50N HI+ este destinat pentru construirea pereților cortină ușori de tip suspendat sau de umplere, precum și a acoperișurilor, luminatoarelor și a altor structuri spațiale.
Acest sistem permite la construirea fațadei cu linii de separare vizibile, oferind în același timp durabilitatea și rezistența structurii. Datorită ofertei bogate de profile, arhitecții și designerii pot realiza cele mai îndrăznețe idei privind structurile din aluminiu și sticlă. În vederea obținerii izolației termice, acustice optime și pentru a facilita montarea fațadei în sistemul MB-SR50N HI+ a fost utilizat un izolator din materialul PE, care oferă o izolație termică foarte bună (Uf: începând cu 0,59 W/m2K), iar forma acestuia permite la introducerea corectă a șurubului în timpul instalării panourilor de sticlă.
În ceea ce privește elementele care se deschid, în fațade cu izolație termică ridicată de tip HI” se recomandă în special utilizarea de ferestre și uși cu izolație termică ridicată realizate în sistemul MB-86 Aero
Caracteristicile care au un impact asupra funcționalității și esteticii fațadelor MB-SR50N HI+:
montanți și traverse cu margini “ascuțite” care permit la construirea structurilor portante ale fațadelor având aspect de grilă uniformă, elemente de îmbinare unghiulare care permit la formarea liberă a structurii din aluminiu
variante estetice de fațadă și o serie de profile de înveliș de diferite forme oferă posibiltatea de obținere a mai multor variante de imagine a fațadei
gama largă de elemente de deschidere în fațadă: diferite tipuri de ferestre și uși, inclusiv lucarne, ferestre integrate în fațadă , precum și ferestre culisante și cu deschidere paralelă MB-SR50N OW
gama largă de geamuri (inclusiv cu două și trei camere), precum și izolatorii și accesoriile disponibile permit la obținerea nivelului ridicat de izolație termică
console pentru fațade cu portanță mare, adaptate pentru greutățile maxime ale umplerilor, care pot fi utilizate în sistem.
Sistemul MB-SR50N HI+ este certificat de Institutului PHI Darmstadt în clasa superioară A+, ceea ce confirmă faptul că structurile realizate în acesta pot fi utilizate la construcții pasive




