- Ofertă
- Realizarile
- Descărcări
- Pregătire
- Zonă autorizată
- Showroom
- Blog
- Despre companie
- Contact
Izolarea termică
UW de la 1,68 | W/(m2K)
Impermeabil
E1500 | EN 122008
Rezistența la vânt
E2400 | EN 12210
Rezistența la impact
E5/I5
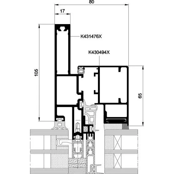
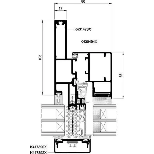
Unique in its design, the MB-SR50N IW system gives a fully integrated curtain wall option, that of an inward opening concealed vent. The external appearance of a fixed light is no different to that of a Tilturn vent. This system is available in three "finished look" options, including standard cap, flat 4mm pressure caps, and EFEKT system option silicone joint. MB-SR50N IW system accommodates glazing units from 24 mm up to 56 mm
Performance:




