- Ofertă
- Realizarile
- Descărcări
- Pregătire
- Zonă autorizată
- Showroom
- Blog
- Despre companie
- Contact
Permeabilitatea la aer
clasa 4 | EN 12207
Impermeabil
E 1800 | EN 12208
Rezistența la impact
clasa 4 | EN 1873
Izolarea termică Uf
>1,8 | W/(m2K)
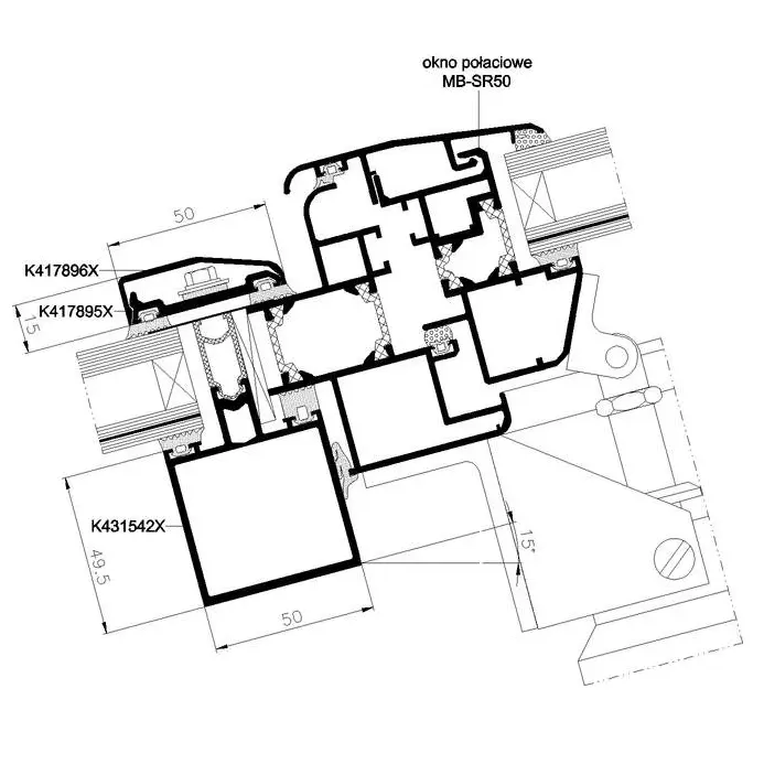
Fereastra de mansardă prezentată constituie o parte a sistemului MB-SR50N și este destinată pentru realizarea trapelor de ventilare.
Ferestrele de acest tip sunt prevăzute pentru instalare pe acoperișuri cu unghiul de înclinare de la 5° până la 75° față de verticală. Lățimea maximă a ferestrei poate fi de 1,80 m, înălțimea de 2,05 m, iar suprafața maximă totală a geamului este de 3,40 m2. Greutatea ferestrei este limitată de parametrii tehnici ai mecanismelor de deschidere și balamale utilizate și aceasta poate de fi de până la 150 kg. Construcția oferă posibilitatea de montare a setului de geamuri cu grosime de 24-32 mm.
Fereastra de mansardă este o construcție modernă și prezintă numeroase avantaje. Profilele portante din aluminiu sunt cu trei camere, izolate cu bariere termice de înălțime corespunzătoare, ceea ce le asigură o rezistență corespunzătoare, izolare termică și rigiditate. Formele lor și designul compact fac ca fereastra să nu iasă din planul acoperișului. Bagheta de mascare din partea exterioară constituie o streașină pentru apa pluvială, iar din partea interioară este cât mai aproape de geam pentru a facilita curgerea apei. Balamalele sunt ascunse în interiorul profilelor astfel încât nu sunt expuse la acționarea intemperiilor, ceea ce prelungește semnificativ durata de viață a acestora.
Ferestrele de mansardă sunt echipate cu sistemul de drenare-ventilare eficient, fixate de sistemul de perete de tip montant-traversă MB-SR50N. Pentru a asigura etanșeitatea înaltă la pătrunderea apei, s-a utilizat în acesta garniturile de etanșare confecționate din EPDM celular. Fereastra este dotată, din partea exterioară cu un șanț din aluminiu special pentru colectarea apei din partea interioară a geamului.
Construcția MB-SR50N RW este adaptată pentru o gama largă de sisteme de închidere existente pe piață iar ferestrele executate în acest sistem, în caz de necesitate, pot îndeplini rolul de trape de fum.


