2023-05-10

ПІДЙОМНО-РОЗСУВНІ ДВЕРІ MB-77HS – ВДОСКОНАЛЕНЕ РІШЕННЯ ДЛЯ СТИЛЬНОГО СКЛІННЯ ТЕРАС

ПІДЙОМНО-РОЗСУВНІ ДВЕРІ MB-77HS – ВДОСКОНАЛЕНЕ РІШЕННЯ ДЛЯ СТИЛЬНОГО СКЛІННЯ ТЕРАС

Система підйомно-розсувних дверей MB-77HS дозволяє виконувати різні конструкції для комфортного виходу на терасу, її можливості поступово розширюються.

Серед рішень, доступних у системі MB-77HS варто згадати, наприклад,

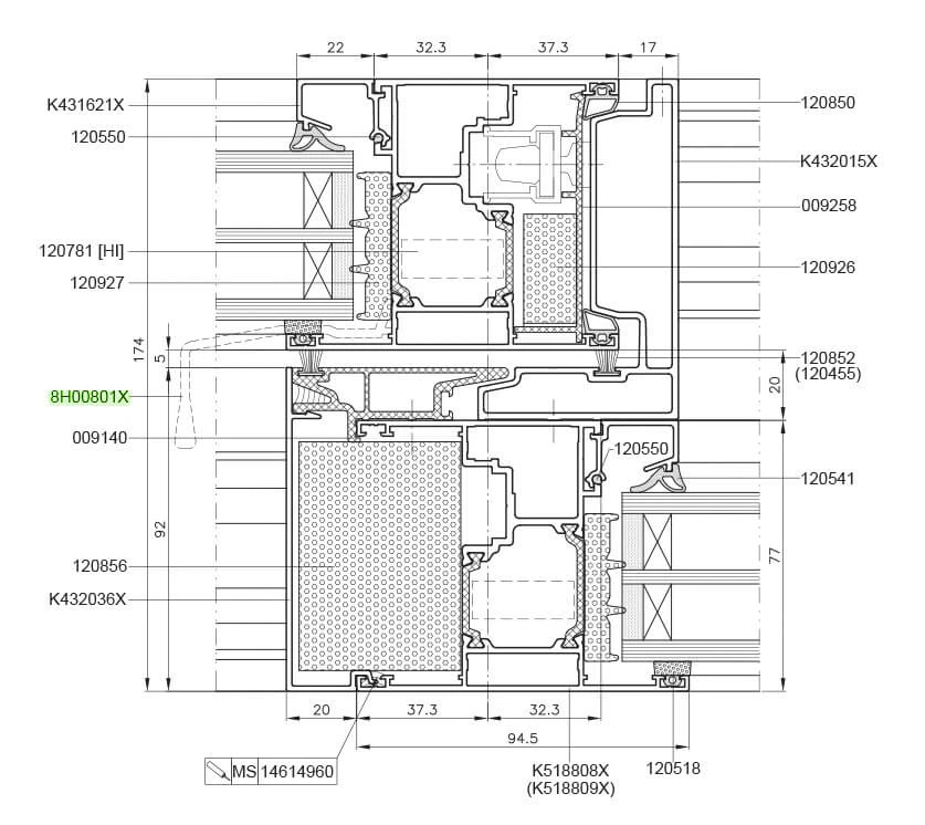
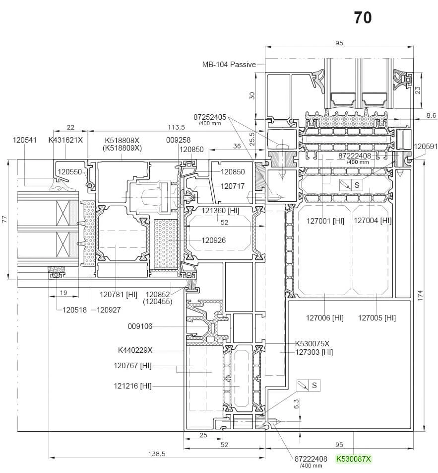
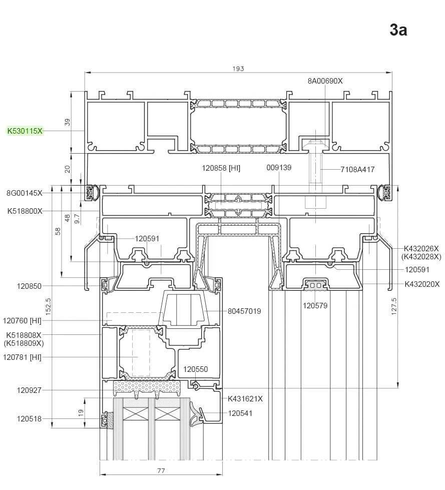
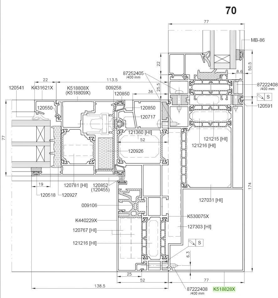
  • нову раму K530075X, оснащену двома терморозривами, яка дозволяє реалізувати естетичний плоский поріг, стаціонарне скління зовні без додаткових профілів, вузьку стійку шириною 50 мм та водовідведення в одну лінію;
  • прихований у стійці привід «HS e-Power», що забезпечує роботу стулки вагою до 400 кг, оснащений інтелектуальною системою виявлення перешкод та вимикачем навантаження, що дозволяє замінити ручку на сенсорну панель управління;
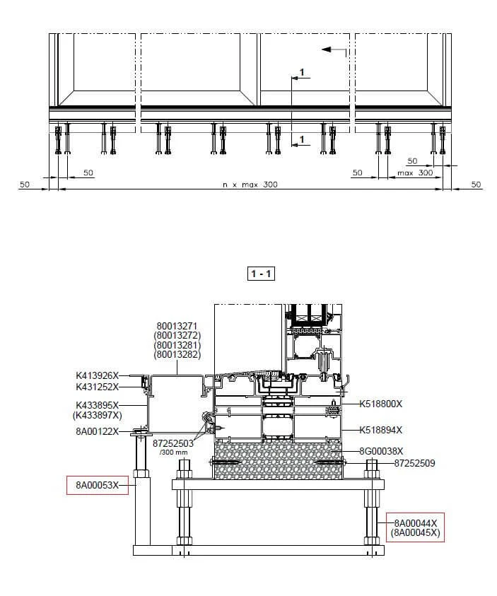
  • монтажні профілі для компенсації прогину стелі;
  • профілі для кутових з'єднань з вікнами систем MB-79NMB-86N та MB-104 Passive;
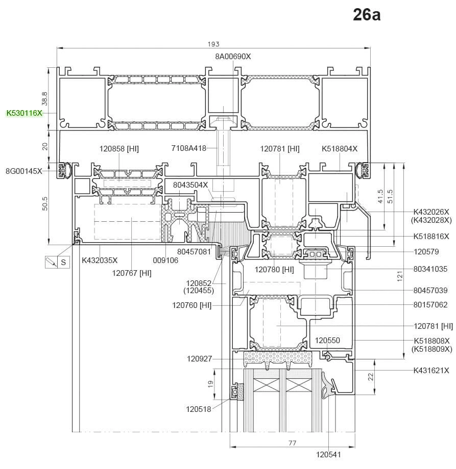
  • зовнішній поручень, призначений для дверей схеми «G2», що полегшує відкриття дверей з боку тераси;
  • можливість інтеграції дверної конструкції з москітною сіткою та жалюзі.

Наразі конструктивні можливості системи MB-77HS доповнені у каталозі та програмному забезпеченні новими рішеннями:

  • нова комбінація G3, що складається з трьох чвертей, в якій середня є стулкою, що відкривається, на одній лінії з нерухомою стулкою. Це асиметричний варіант виду, але з перевагами щодо ізотерм у структурі;
  • поділ верхньої та нижньої рам незалежно одна від одної, що є зручним рішенням насамперед на етапі підготовки та реалізації конструкції;
  • монтажні кронштейни 8A00044X та 8A00045X;
  • скління житлових приміщень зсередини профілем К(..) 8610 X.

Пропонуємо вам ознайомитися з поточними можливостями системи MB-77HS, ми переконані, що вони дозволять ширше задовольнити вимоги клієнтів та архітекторів щодо підйомно-розсувних дверей для терас. Клієнтів, що виготовляють двері з прихованим приводом HS e-Power просимо ознайомитися з технічними та організаційними вимогами та схемою розведення приводу, які додаються до «Форми замовлення приводу GU для системи MB-77HS», доступної в авторизованій зоні, а також звернутися до сервісної служби Aluprof.

Галерея

Інші новини