




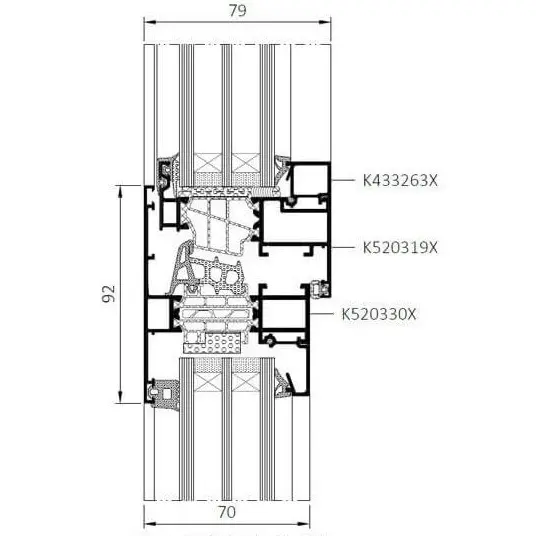
Система MB-79N US - це економічне та функціональне рішення, яке одночасно відповідає всім технічним вимогам. Воно дозволяє зробити вікна зі непомітними зовні стулками. У серії суміжних фіксованих і відкритих вікон неможливо розрізнити розташування цих полей. Завдяки цьому ми отримуємо рівномірний вигляд всіх вікон на фасаді будівлі, незалежно від їх призначення. Система MB-79N US є детально опрацьованим рішенням. Пропонує два варіанти фальца: з рамою типу А - частково закриває стулку, і з рамою типу В - повністю закриває стулку, що ідеально імітує фіксовані вікна. Зовнішні поверхні склопакетів, встановлених у полях, що відкриваються, та фіксованих полях, лежать в одній площині. Завдяки спеціальному адаптивному профілю можливе використання рам і лат з базової системи MB-79N у вікнах з прихованою стулкою. Система MB-79N US дає можливість виготовляти вікна великих розмірів і ваги. Ці конструкції, як і базова віконна система MB-79N, характеризуються високою тепло- і звукоізоляцією, а також водо- і повітронепроникністю. Ця система відповідає всім вимогам енергозбереження та захисту навколишнього середовища.
Особливості та переваги системи MB-79N US:



 kopia.webp?v=1762500317)




