Airtightness
class 3 | PN-EN 12207:2001
Watertightness
class 5A | PN-EN 12208:2001
Windtightness
class C2 / B2 | PN-EN 12210:2016
Thermal insulation Uf
> 1,9 | W/(m2K)

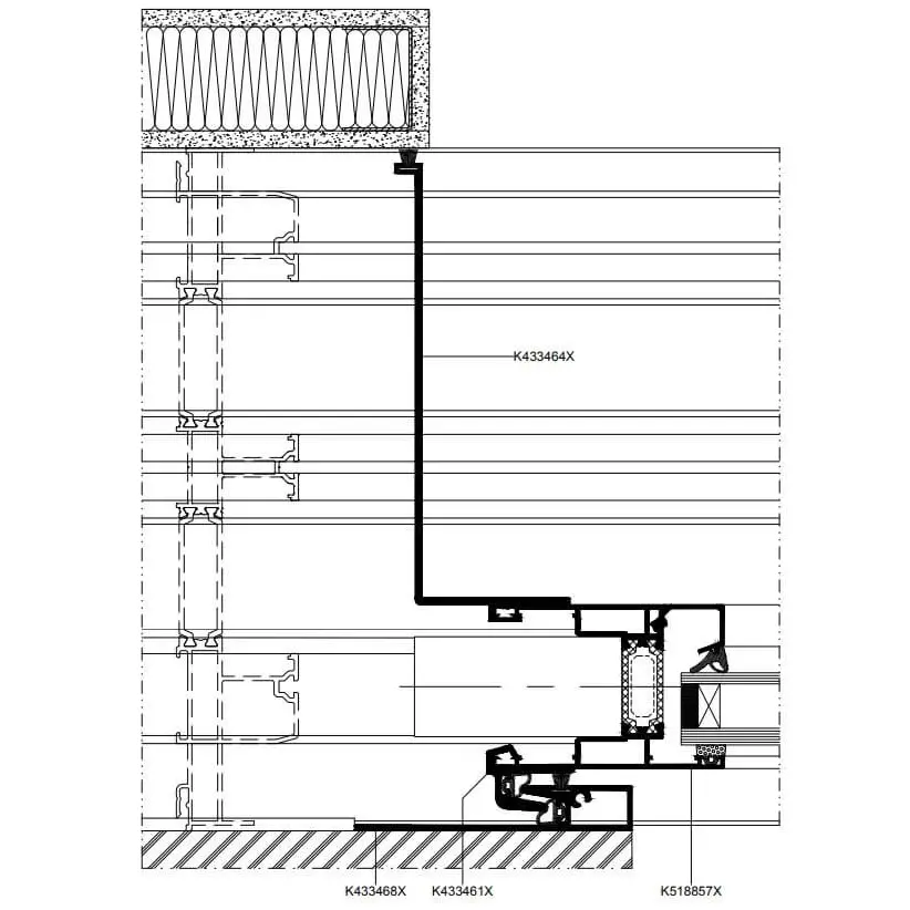
MB-59 Slide Galandage is based on the MB-59 Slide system solutions and has been designed for producing thermally insulated sliding doors that slide straight into the wall (once open, the door leaf is hidden in the wall).
Installed that way, the door fully connects indoor and outdoor living spaces. MB-59 Slide Galandage’s system profiles come in two options that offer different thermal insulation performances: ST and HI. The range of available profiles include 2- and 3-rail frames. Many glazing options allow for double and triple glazing units, including safety and sound insulation glass.
FEATURES AND BENEFITS




