Акустична изолация
Rw до 48 dB / Ra1 до 46 dB
Височина
до 3600 мм



MB-HARMONY OFFICE е нова гама продукти за изграждане на вътрешни стъклени прегради. Той е замислен да създаде лесно сглобяема и бърза за инсталиране система, която осигурява траен, съвременен и просторен дизайн с гарантирана производителност и комфорт на потребителя.
MB-HARMONY е система с единично остъкляване, която е част от серията преградни стени MB-HARMONY OFFICE. Геометрично лек и лесен за сглобяване, не изисква специални строителни инструменти. Проектиран е да се комбинира с закалено стъкло или с 10-12 мм акустично стъкло. Системата е идеална за типични офис пространства, дори и такива с акустични изисквания над нормите.
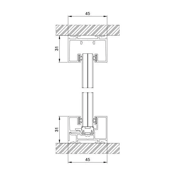
MB-HARMONY DUO е система за изграждане на вътрешни прегради с двоен стъклопакет. Проектиран е предимно за офис помещения с много високи акустични изисквания. Двойното остъкляване осигурява изолацията, необходима за поддържане както на отличен комфорт на потребителя, така и на неприкосновеността на личния живот и разговорите вътре. DUO отразява геометрията на единично остъклени прегради на своята сродна система, MB-HARMONY, което означава, че и двете решения могат да се използват заедно за създаване на естетическо едностилие.
За да гледате видео, представящо производството и монтажа на конструкцията, просто влезте в нашата оторизирана зона.



ZAWIAS_ROLKOWY_HARMONY_DUO.webp?v=1762499326)





















