Водонепропускливост
клас E 1500 Pa | EN 12208
Топлоизолация UW
> 0,86 | W/(m2K)
Пропускливост на въздух
клас 4 | EN 12207
Класове противопожарни
клас EI30 | EN 13501-2:2016-07


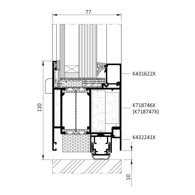
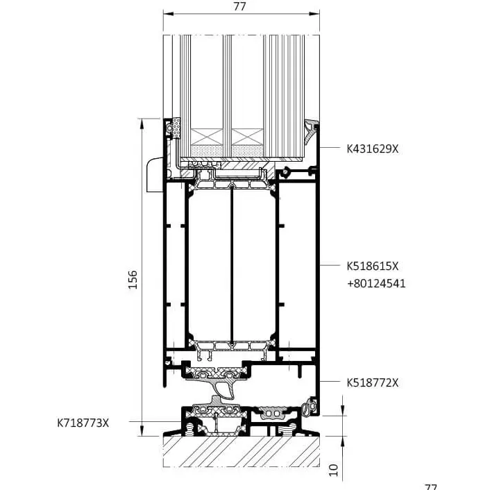
Система MB-86 EI се използва за изработване на отваряеми прозорци с клас на огнеустойчивост EI 30 съгласно стандарт EN 13501-2 + A1. Конструкцията е базирана на система MB-86N, благодарение на което се характеризира с висока топло- и звукоизолация, както и водо- и въздухонепропускливост.
По този начин система MB-86 EI съчетава предимствата на класическа прозоречна система със свойствата на огнеупорните прегради - конструкциите, изработени в тази система, отговарят на всички изисквания на приложимите разпоредби и стандарти, особено по отношение на енергоспестяването и опазването на околната среда, като същевременно осигуряват подходяща пожарна безопасност. Системата е класифицирана като неразпространяваща огън (NRO).
Предимства на система MB-86 EI:





_logo.webp?v=1762499893)





