- Оферта
- Проекти
- Изтегляния
- Обучение
- Достъп с оторизация
- Шоурум
- Blog
- Фирма
- Контакт
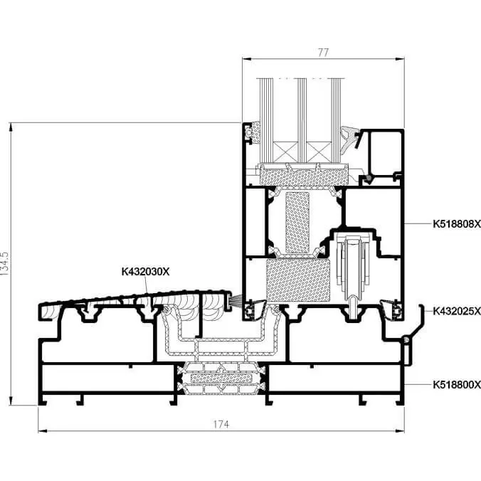
Пропускливост на въздух
клас 4 | PN-EN 12207
Водонепропускливост
клас 9A | EN 12208
Топлоизолация
UW> 0,84 | W/(m2K)
Устойчивост на ветрово натоварване
клас C4 | EN 12210



Системите тип повдигане и плъзгане са идеално предложение за изграждане на преграда, свързваща закрити помещенията или зимни градини с външния свят, те представляват удобен изход на балкона, терасата или към градината.
Те позволяват много добър контакт с околната среда и в отворено положение не заемат място в помещението, което допълнително увеличава комфорта при тяхното използване. Системата MB-77HS е един от продуктите с най-добри параметри и отговаря на всички изисквания за тази група продукти.
Разполага с два варианта на конструкцията, които се различават по топлоизолация: ST и HI. Структурата на профилите позволява производството на ексклузивни врати с големи размери, изпълнени с едно- или двукамерен стъклопакет, а използваните материали и технически решения спомагат за постигане на висока степен на термична и звукова защита. Повдигащо-плъзгащите терасни врати са идеални както за еднофамилни сгради, така и за комфортни апартаменти или хотели.
Функционалност, естетика, предимства на конструкцията












_logo.webp?v=1764745254)

