New

MB-79N CO

CRANK-OUT and PUSH-OUT windows

Compliance with AAMA standard

class CW50

Air permeability

up to 1.57 psf

Water tightness

up to 7.52 psf

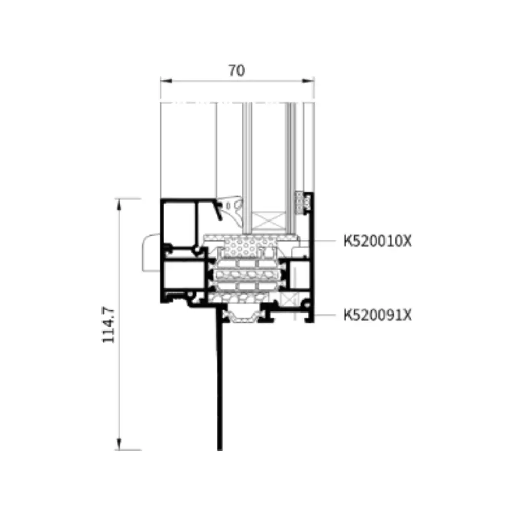
MB-79N CASEMENT OPERATOR is the first thermally insulated aluminium window system with a crank-out mechanism designed for the US market, available to manufacturers in Poland. It combines comfort of use, modern appearance and high functionality – in line with the requirements of the American market. The window opening mechanism located on the bottom edge is easily accessible even for people with mobility issues. The system allows for the use of a frame mosquito net, which makes these structures not only convenient but also practical. The available version of the frame, which can be installed with nails, means that these windows can be quickly and efficiently fitted into the building, regardless of whether it is a new or renovated property.

Distinguishing features of MB-79N CO windows:

  • Comfort first – thanks to the crank-out mechanism, the window opens easily and precisely
  • Aesthetic, slim profiles allow for larger glazing and more natural light in the room
  • Outward opening allows for free arrangement of the interior space and installation of insect screens from the inside
  • Two types of opening: crank-out and push-out
  • Dedicated frame insect screens – always ready to protect against insects
  • Sash profiles hidden from the inside – modern aesthetics
  • Excellent thermal parameters – U-factor as low as 0.30 Btu/(h·ft²·°F)
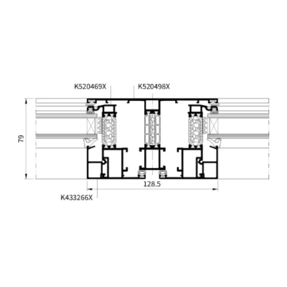
  • Wide range of glazing (12–55.5 mm) and possibility of using two-colour profiles
  • Systemic ‘nail fin’ installation and compatibility with the MB-79N and MB-79N US window system families

Advantages of MB-79N CO windows for manufacturers:

  • Product fully compliant with AAMA standard, class CW50
  • Compatibility with the MB-79N family – production efficiency
  • Two drainage options: concealed and visible with a decorative cover
  • Available in ST and SI thermal versions
  • Brochure MB-79N CO
    157.33 KB / pdf

Our projects

Other Stories

Ireland, Dublin

Other Stories

1 Lyric Square

United Kingdom, Hammersmith, London

1 Lyric Square

22 Parkside

United Kingdom, London

22 Parkside

Alder Hey Academy

United Kingdom, Liverpool

Alder Hey Academy

Broadgate Circle

United Kingdom, London

Broadgate Circle

Capital Quarter No 3

United Kingdom, Cardiff

Capital Quarter No 3

Monfort University Queen Elizabeth II Diamond Jubilee Leisure Centre

United Kingdom, Leicester

Monfort University Queen Elizabeth II Diamond Jubilee Leisure Centre

Google HQ

Ireland, Dublin

Google HQ

Hayward Gallery London

United Kingdom, London

Hayward Gallery London

North Hanover Street Glasgow

United Kingdom, Glasgow

North Hanover Street Glasgow

Premier Inn-Dundee

United Kingdom, Dundee

Premier Inn-Dundee

The Square Chapel Arts Centre

United Kingdom, Halifax

The Square Chapel Arts Centre

Dr Lee Shau Kee Access Centre & William Doo Undergraduate Centre (John Watkins Building - Wadham College Student Centre)

United Kingdom, Oxford

 Dr Lee Shau Kee Access Centre & William Doo Undergraduate Centre (John Watkins Building - Wadham College Student Centre)

110 Cannon Street

United Kingdom, London

110 Cannon Street

3 Dublin Landings

Ireland, Dublin

3 Dublin Landings

36 Chancery Lane

United Kingdom, London

36 Chancery Lane

6 East Parade

United Kingdom, Leeds

6 East Parade

68-86 Farringdon Rd.

United Kingdom, London

68-86 Farringdon Rd.

Andrew Marvell College

United Kingdom, Kingston Upon Hull

Andrew Marvell College

Athletes Village

United Kingdom, Glasgow

Athletes Village

Premier Inn-Dundee

United Kingdom, Dundee

Premier Inn-Dundee

The Square Chapel Arts Centre

United Kingdom, Halifax

The Square Chapel Arts Centre

Dr Lee Shau Kee Access Centre & William Doo Undergraduate Centre (John Watkins Building - Wadham College Student Centre)

United Kingdom, Oxford

 Dr Lee Shau Kee Access Centre & William Doo Undergraduate Centre (John Watkins Building - Wadham College Student Centre)

110 Cannon Street

United Kingdom, London

110 Cannon Street

3 Dublin Landings

Ireland, Dublin

3 Dublin Landings

36 Chancery Lane

United Kingdom, London

36 Chancery Lane

6 East Parade

United Kingdom, Leeds

6 East Parade

68-86 Farringdon Rd.

United Kingdom, London

68-86 Farringdon Rd.

Andrew Marvell College

United Kingdom, Kingston Upon Hull

Andrew Marvell College

Athletes Village

United Kingdom, Glasgow

Athletes Village