- Ponuda
- Galerija
- Preuzimanja
- Obuke
- Odjeljak za članove
- Showroom
- Blog
- Društvo
- Kontakt
Zrakopropusnost
AE 1200 Pa
Vodonepropusnost
RE 1200 Pa
Otpornost na opterećenje vjetrom
±2000 Pa
Toplinska izolacija
UCW < 0,9 W/(m²K)
Sustav MB-SE65 je element fasada koja je tehnološki napredna i nudi izvrsnu toplinsku izolaciju. Ističe se svojom svestranošću primjene, visokim tehničkim performansama i pojednostavljenom prefabrikacijom, pružajući moderan pristup u stvaranju fasada za prestižne zgrade.
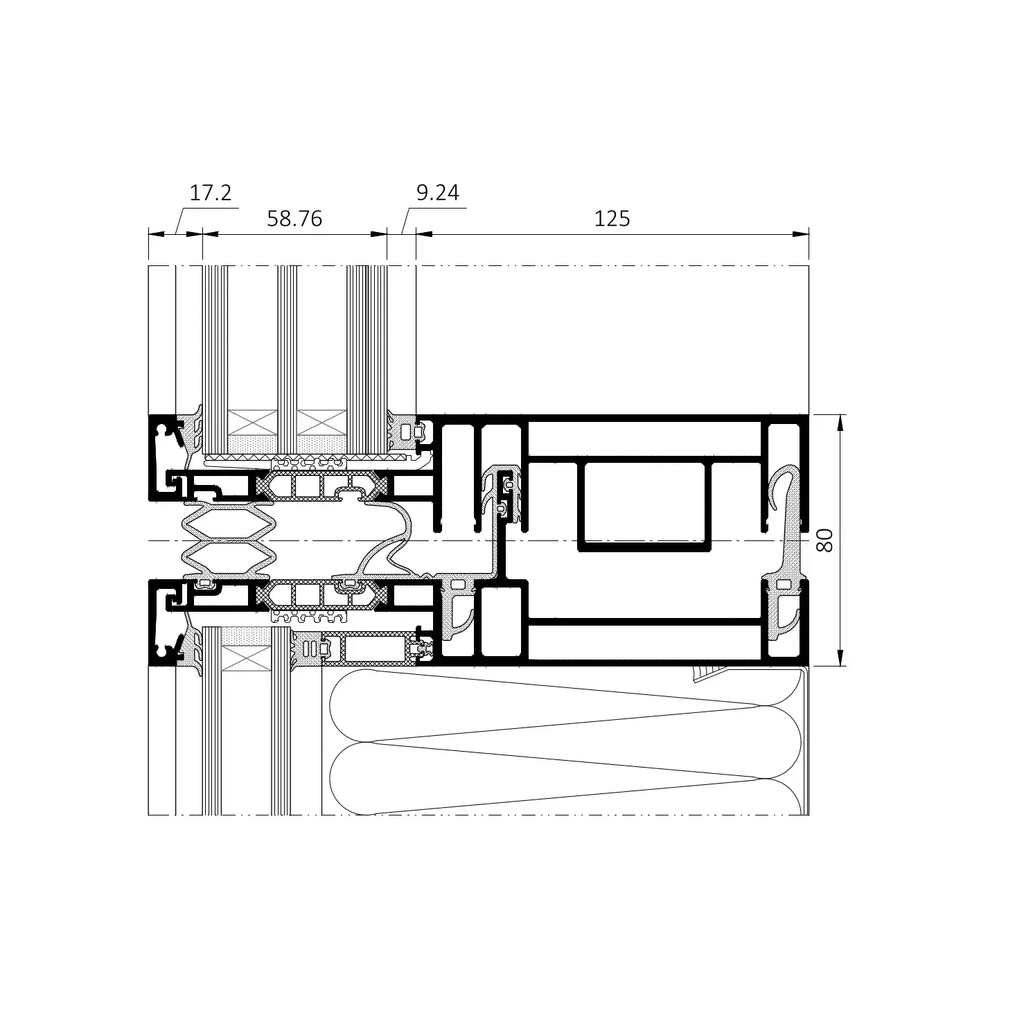
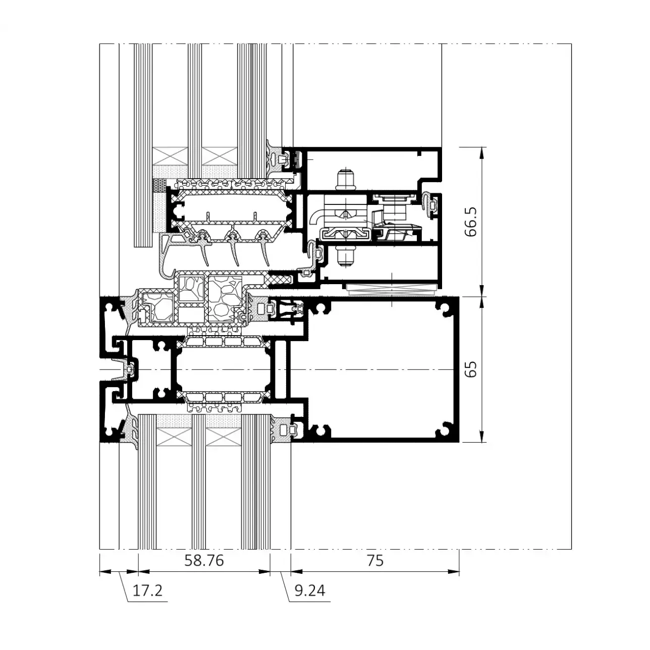
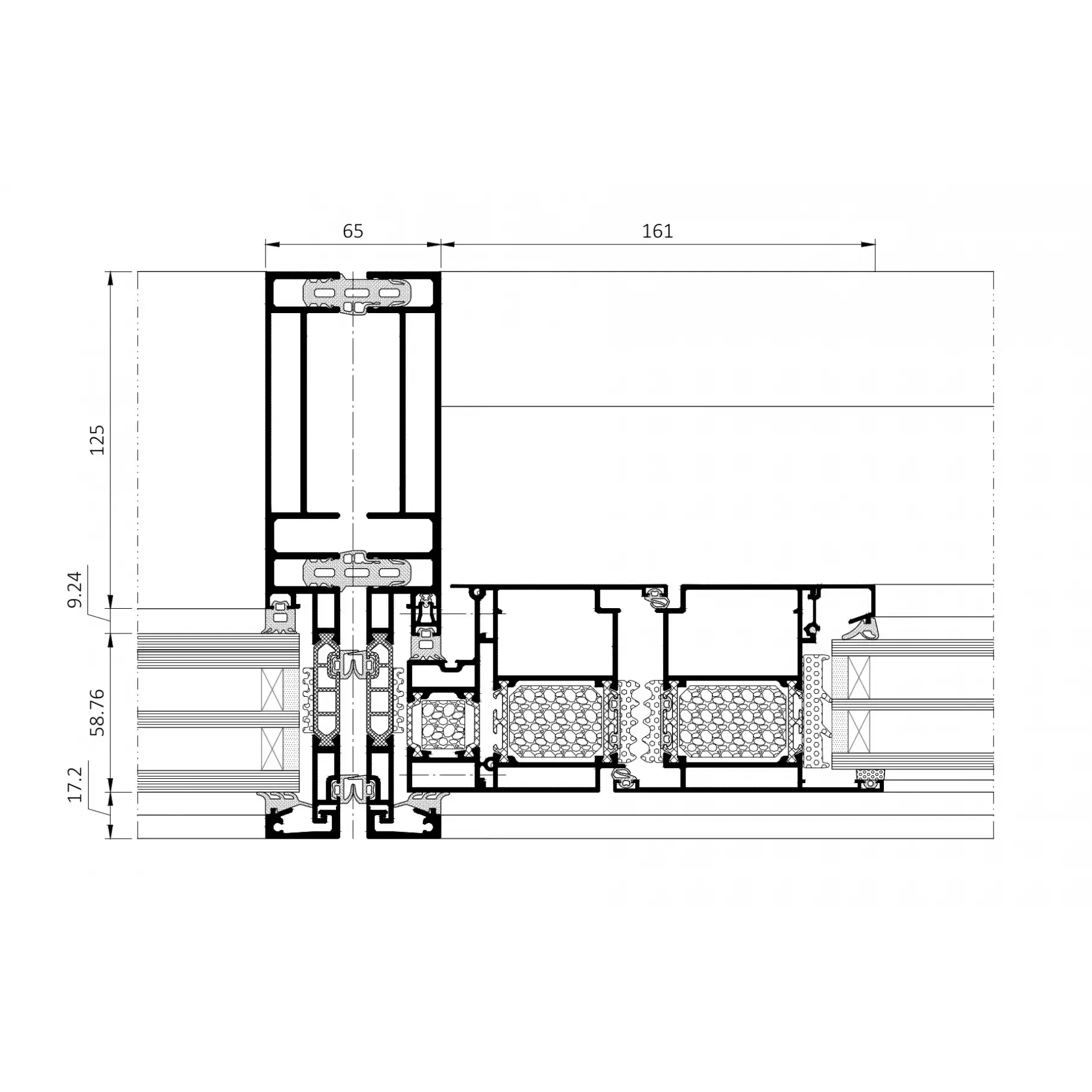
Element fasada MB-SE65 rezultat je iskustva stečenog pri izgradnji visokih zgrada u Sjedinjenim Američkim Državama i Europi. Dizajniran je za lagane, viseće fasade. Konstrukcija se sastoji od modula koji su u potpunosti prefabricirani u proizvodnom pogonu, što donosi brojne prednosti. Među njima je visoka kvaliteta proizvedenih komponenti jer su izrađene u optimalnim uvjetima pod potpunom kontrolom proizvođača. Instalacija ove vrste fasade iznimno je brza i eliminira potrebu za skelama na gradilištu.
Element izvrsnog dizajna Raznolikost, fleksibilnost i originalnost – to su glavne značajke sustava fasade MB-SE65. Vanjski profili širine samo 65 mm daju fasadi elegantan i lagan izgled. Arhitekti mogu birati između tradicionalnog ostakljenja s pokrivnim letvicama ili strukturalnog ostakljenja, čime dobivaju veliku kreativnu slobodu. Fasada podržava širok raspon izolacijskih stakala s termičkim prekidima prilagođenim specifičnim zahtjevima projekta. Zahvaljujući prefabrikaciji u proizvodnom pogonu, mogu se oblikovati nestandardni segmenti s ukrasnim vanjskim profilima, poput lamela ili noževa. Također je moguće jednostavno integrirati dvostruke segmente. Element fasada MB-SE65 omogućuje savršenu integraciju standardnih prozora (MB-79N, MB-86N) i fasadnih prozora (MB-SR50N OW HI+).
Element napredne tehnologije Sustav MB-SE65 sadrži tehnološki napredna rješenja koja ovu fasadu čine jedinstvenom na tržištu element fasada. Primjerice, koriste se posebno dizajnirani spojni elementi koji kontroliraju raspodjelu ljepila u kutovima, osiguravajući visoku krutost i vodonepropusnost spojeva, zadržavajući pravi kut među profilima. Značajna kompenzacija horizontalnih (±3 mm) i vertikalnih (±12 mm) pomaka osigurava se dilatacijskim spojevima koji omogućuju pravilno funkcioniranje konstrukcije. Dodatna prednost je kompenzacija dimenzijskih tolerancija elemenata.
Element iznimnih performansi Tehnička rješenja implementirana u sustavu MB-SE65 odražavaju se u izvrsnim parametrima postignutim tijekom laboratorijskih ispitivanja fasade. Rezultati pokazuju da sustav pruža optimalne performanse u različitim vremenskim uvjetima, što ga čini pogodnim za projekte diljem svijeta.
Tehnički podaci MB-SE65:
Prednosti MB-SE65 za proizvođače:
Prednosti MB-SE65 za arhitekte:
Prednosti MB-SE65 za investitore:








