Minimalus fiksuotų langų matomas profilio plotis
35,2 mm
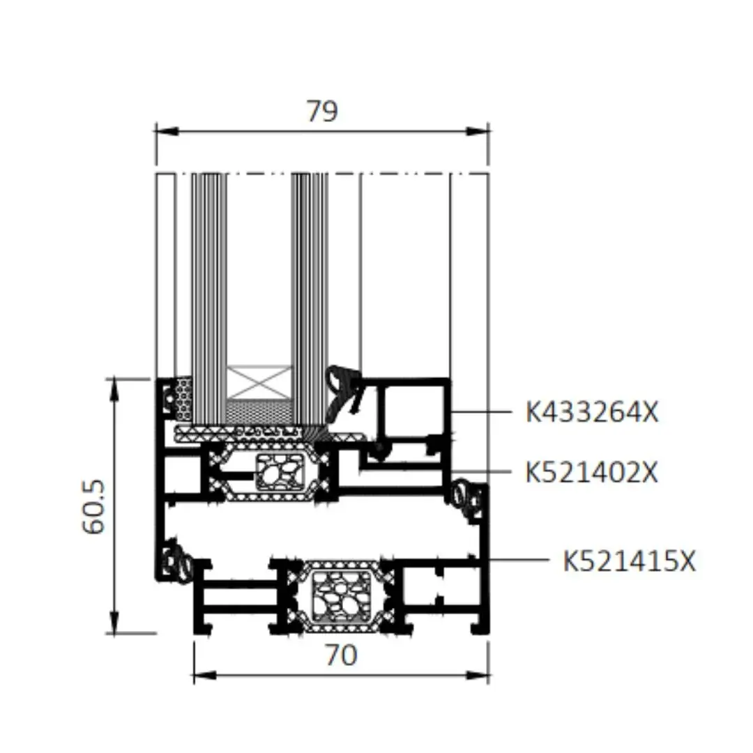
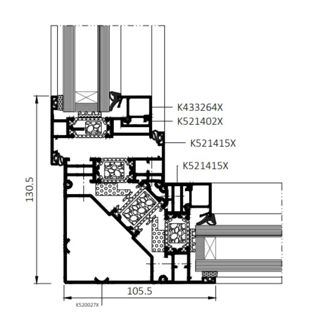
Minimalus atverčiamų langų matomas profilio plotis
60,5 mm
Didžiausias varčios svoris
80 kg
MB-79N CSF išorėn atverčiami langai su plonais profiliais buvo sukurti reikliausiems Jungtinės Karalystės ir Airijos klientams. Pažangios gamybos technologijos ir aukštos kokybės apdaila paverčia juos puikiu pasirinkimu gamintojams, architektams, plėtotojams ir galutiniams naudotojams, kurie ieško kokybės, estetikos ir energinio efektyvumo.
Ši sistema paremta trijų kamerų profiliu su šilumos pertrauka, todėl siūlo puikią šilumos izoliaciją kartu su minimalistiniu dizainu. MB-79N CSF leidžia kurti įvairius langų tipus: fiksuotus, atverčiamus, atverčiamus-virtiemus. Galimos dvi estetinės versijos – vienaplanė, kurioje rėmas ir varčia yra vienoje plokštumoje iš išorės, bei nevienaplanė, atkurianti tradicinę atverčiamų langų estetiką ir suteikianti fasadui papildomą charakterį. Priderintas prie įvairių poreikių Sistema sukurta taip, kad pasižymėtų plačiomis pritaikymo galimybėmis, ir siūloma su dviem šilumos izoliacijos lygiais. MB-79N CSF ST – ekonomiškas sprendimas su gera šilumos izoliacija, puikiai tinkantis riboto biudžeto projektams. MB-79N CSF SI – papildomai izoliuota versija su specialiomis termoizoliacinėmis įdėklomis profilio šilumos pertraukose, kurios ženkliai pagerina energinį efektyvumą. Ši universali sistema puikiai tinka tiek gyvenamosioms, tiek komercinėms patalpoms ir gali būti pritaikyta pagal konkrečius projekto reikalavimus.
Naujovė rinkoje: hibridinė vyriai
Šiam langų tipui buvo sukurta visiškai nauja hibridinė vyriai, leidžianti montuoti varčias, kurių svoris siekia iki 80 kg. Tai suteikia galimybę naudoti didesnius ir sunkesnius langų elementus, neprarandant funkcionalumo ar saugumo.
MB-79N CSF privalumai gamintojams:
MB-79N CSF privalumai architektams:
MB-79N CSF privalumai investuotojams ir naudotojams:
.webp)
.webp?v=1761731728)
.webp?v=1761731728)
.webp?v=1761731728)







