Uși culisante

Uși culisante

-

Ușile de balcon și de terasă sunt un element esențial al amenajărilor interioare. Funcționalitatea și estetica acestora se reflectă în amenajarea interiorului și a terasei. Pe lângă aspectul modern, soluțiile implementate trebuie să asigure și o izolație termică adecvată. Aluprof vă propune sisteme glisante și de tip armonică din aluminiu, care reprezintă o combinație între parametrii tehnici adecvați și estetica rafinată. Un alt avantaj important oferit constă în posibilitatea de a adapta soluțiile chiar și la cele mai sofisticate proiecte.

Soluții complexe de sisteme glisante

Sistemele inovatoare Aluprof satisfac cerințele arhitecturii moderne, iar sistemele glisante permit realizarea de uși și ferestre pentru balcoane și terase, în clădiri de diferite tipuri. Complexitatea sistemelor reprezintă un element important care influențează în mod direct aspectul estetic al proiectului, deoarece aceste sisteme nu includ doar ferestrele sau ușile glisante, ci și tocurile, profilele și ghidajele compatibile cu mai multe modele. Disponibilitatea unor soluții variate oferite de producătorul Aluprof permite adaptarea completă a sistemului de uși și ferestre, chiar și în cazul celor mai sofisticate proiecte.

Ușile de terasă – variante

Având în vedere diversitatea gamei de uși și ferestre de terasă din aluminiu, tipurile și funcțiile acestora se pot adapta la un proiect de clădire sau la necesitățile utilizatorilor clădirii. Pentru a face o alegere potrivită, trebuie să se țină cont de întregul spațiu în care ușa glisantă urmează să fie montată. Dimensiunile golului pentru ușă și ale pereților care îl înconjoară determină în mod direct nu doar dimensiunile ușii, ci și modul în care aceasta se va deschide. Atât în cazul spațiilor private nu prea mari, cât și în cazul teraselor comerciale cu suprafețe ample, se pot folosi sisteme glisante, disponibile în diferite variante.

Uși glisante și uși glisante și cu ridicare

Din categoria ușilor glisante fac parte, printre altele MB-59 Slide și MB-Skyline, care se remarcă nu doar prin sistemul de deschidere, ci și prin excelenta izolație termică (respectiv Uf>1,9 W/(m2K) și Uw de la 0,85 W/(m2K)), rezistența la vânt și posibilitatea de a crea suprafețe din sticlă eficiente, cu dimensiuni mari, având până la 4 m înălțime.

În funcție de necesitățile utilizatorilor clădirii și ale cerințelor proiectului, sistemele glisante din aluminiu sunt disponibile cu un cadru standard sau ascuns. Cadrele ascunse sunt disponibile pentru sistemele MB-Skyline și MB-Skyline Type R. Pentru acestea, se utilizează un toc cu o adâncime de doar 23 mm. De asemenea, stâlpul care unește canaturile ușii este deosebit îngust (25 mm). Cadrul ascuns al ușilor glisante se integrează perfect într-o arhitectură modernă și este potrivit pentru diferite tipuri de proiecte – atât private, cât și comerciale.

Iluzia de fragilitate a întregii construcții nu constituie un impediment pentru crearea unor suprafețe impunătoare din sticlă. În funcție de necesitățile utilizatorilor, se pot realiza suprafețe din sticlă cu trei geamuri (MB-Skyline), cu o înălțime maximă a canatului de până la 4 m. În cazul ușilor panoramice MB-Skyline Type R, greutatea maximă a canatului depinde de sistemul de deschidere. Ușile cu deschidere manuală pot avea o greutate de până la 500 kg, iar în cazul celor acționate cu servomotor, greutatea poate ajunge până la 1200 kg.

Modelele cu ridicare și glisare sunt MB-77HS, MB-77HSB și MB-59HS. Datorită profilelor subțiri și robuste, aceste sisteme permit realizarea de uși cu praguri joase, cu greutăți cuprinse între 300 kg (MB-77HSB, MB-59HS) și până la 600 kg (MB-77HS). Se remarcă prin performanțele excelente ale izolației (termice, acustice) și prin etanșeitate. Sunt disponibile tocuri cu una, două și trei șine, fiind posibilă adaptarea structurii ușii la cerințele utilizatorului. În cazul sistemului MB-77HS, este posibilă realizarea de uși de colț la 90 și 270⁰, cu stâlp mobil.

Sistemele glisante și cele cu ridicare și culisare permit ca ușile și ferestrele să se deschidă cu ușurință – nu este nevoie de prea multă forță pentru a le deschide, iar mecanismul de deschidere este silențios.

Soluția pentru cei pretențioși – ușile tip armonică

Sistemul tip armonică MB-86 FOLD LINE HD este o soluție originală pentru ușile de terasă, care permite crearea de diferite aranjamente în cazul sistemelor pentru ferestre. Acestea se pot deschide spre exterior sau spre interior, în funcție de necesitățile utilizatorilor. Structura personalizabilă, care poate fi alcătuită din până la 8 canaturi, permite adaptarea sistemului la stilul și la caracteristicile funcționale ale proiectului. În plus, aceste uși pot avea lățimi de 0,7–1,2 m și înălțimi de până la 3 m. Aproape întreaga suprafață a golului de ușă poate fi expusă, creându-se un spațiu larg de trecere, de ex. spre terasă. Dacă sunteți în căutarea unor soluții pentru ușile de terasă, vă recomandăm să aruncați o privire și la aceste sisteme.

Eficiența energetică a sistemelor glisante din aluminiu

Printre avantajele ușilor de terasă din aluminiu, se numără, cu siguranță, structura ușoară a acestora. De asemenea, parametrii excelenți ai izolației termice (Uf de la > 0,84 W/(m2K), etanșeitatea (până la clasa 9A) sau rezistența la vânt (până la clasa C4) se numără printre avantajele incontestabile ale acestor uși. Un alt factor important este permeabilitatea la aer a sistemelor de geamuri pentru balcon, care, în funcție de modelul ales, poate ajunge inclusiv la clasa 4, adică cel mai înalt nivel de etanșeitate. Caracteristicile excelente de izolare ale sistemelor glisante din aluminiu pentru uși de balcon influențează pozitiv eficiența energetică a clădirii, lucru confirmat de utilizarea acestora la scară largă în clădirile pasive. Atunci când alegeți un sistem de uși și ferestre glisante, este bine să comparați parametrii diferitelor modele, ținând cont și de tipurile de garnituri de etanșare utilizate.

Ferestrele de terasă și ferestrele glisante – tipuri și dimensiuni

Printre cei mai importanți parametri ai ferestrelor glisante pentru balcoane și terase se numără dimensiunile acestora. În funcție de varianta aleasă, lățimea lor poate fi cuprinsă între 1,8 și 3,3 m, iar înălțimea lor putând ajunge până la 4 m, lucru care vă va permite să combinați în mod spectaculos clădirea cu terase sau verande. Datorită gamei bogate de dimensiuni și greutății maxime admisibile a canaturilor, sistemele glisante din aluminiu pot fi utilizate atât în locuințe private, cât și în clădiri publice.

Dimensiunile ample ale ferestrelor glisante nu diminuează robustețea și rezistența acestora. Profilele subțiri din aluminiu asigură un aspect estetic și o rezistență ridicată – greutatea unui canat al ferestrei poate ajunge până la 1200 kg. Deschiderea ferestrei se face ușor și lin, în ciuda greutății sale, deoarece este acționată cu ajutorul unui servomotor.

În cazul ferestrelor de terasă, un aspect important îl reprezintă grosimea geamurilor. În funcție de sistemul ales, grosimea variază între 13,5 și 61,5 mm. Sunt disponibile diferite grosimi ale geamurilor, iar pentru variantele cu una sau două camere, acest aspect influențând izolația termică și acustică.

Sisteme glisante și tip armonică de la producător

Sistemele glisante și tip armonică moderne și de înaltă calitate sunt o soluție inovatoare, care conferă un caracter unic oricărui proiect. Ferestrele și ușile glisante pentru terase și balcoane permit crearea unui spațiu excepțional protejându-l în același timp împotriva condițiilor meteorologice nefavorabile. Vă invităm să descoperiți sistemele disponibile pentru a crea interioare funcționale și frumoase!

MB-82HS
MB-82HS
UȘĂ-FEREASTRĂ LIFTANT-GLISANTĂ
  • Etanșeitate la aer
    clasa 4 | PN-EN 12207
  • Etanșeitate la apă
    750 Pa - 1800 Pa | EN 12208
  • Rezistența la încărcătură de vânt
    1200 Pa - 2400 Pa | EN 12210
  • Izolație termică UW
    de la 0,60 | W/(m2K)
  • Cu izolație termică
  • Montant subțire
  • Montant standard
  • Uși liftante și glisante (HS)
  • Prag fără bariere
  • Prag jos
MB-37 SLIDE STORM
MB-37 SLIDE STORM
Uși glisante pentru balcon rezistente la uragane
  • Permeabilitate la aer:
    0.30 cfm/ft2K) | ASTM E283, TAS 202-94
  • Etanșeitate la apă:
    12 psf | ASTM E331, TAS 202-9
  • Rezistență la presiune statică:
    ±60 psf / ±90 psf | ASTM E330, TAS 202-94
  • Rezistență la impact:
    Clasa 10 | Clasa 10, ASTM F588, TAS 202-94
  • Fără izolație termică
  • Glisante
  • Montant standard
MB-SKYLINE TYPE S
MB-SKYLINE TYPE S
Uși glisante de profil îngust
  • Greutatea maximă a foii
    750 kg
  • Înălțimea maximă a ușii
    4 m
  • Lățimea montantului la îmbinarea foilor
    25 mm
  • Cu izolație termică
  • Glisante
MB-SKYLINE TYPE R
MB-SKYLINE TYPE R
Uși glisante cu toc ascuns
  • Greutate maximă a canatului
    1200 kg
  • Înălțimea maximă a ușii
    4 m
  • Lățimea zonei de îmbinare a canatelor
    25 mm
  • Adâncimea tocului
    23 mm
  • Cu izolație termică
  • Glisante
  • Prag fără bariere
  • Montant subțire
MB-SKYLINE
MB-SKYLINE
Uși glisante cu toc ascuns
  • Permeabilitatea aerului
    clasa 3 | EN 12207
  • Etanșeitate la apă
    până la clasa 9A (600 Pa) | EN 12208
  • Rezistența la sarcina generată de vânt
    până la clasa C5 (2000 Pa) | EN 12210
  • Izolație termică
    UW de la 0,85 | W/(m2K)
  • Glisante
  • Prag fără bariere
  • Montant subțire
  • Cu izolație termică
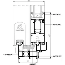
MB-77HS
MB-77HS
Uși liftant-glisante pentru balcon
  • Permeabilitatea aerului
    clasa 4 | PN-EN 12207
  • Etanșeitatea la apă
    clasa 9A | EN 12208
  • Izolație termică UW
    > 0,84 | W/(m2K)
  • Rezistența la sarcina generată de vânt
    până la clasa C4 | EN 12210
  • Cu izolație termică
  • Rezistență la efracție
  • Prag jos
  • Prag fără bariere
  • Uși liftante și glisante (HS)
  • Montant standard
  • Montant subțire
MB-86 FOLD LINE HD
MB-86 FOLD LINE HD
Sistem dedicat ușilor armonice
  • Greutatea maximă a ușii
    120 kg
  • Înălțimea maximă a ușii
    3,0 m
  • Lățimea maximă a foii ușii
    1,2 m
  • Cu izolație termică
  • Prag jos
  • Uși pliabile
  • Montant standard
    Produs finit
OpenSlide
OpenSlide
Structuri de închidere complet vitrate pentru pergole, terase și logii
  • Fără izolație termică
  • Glisante
  • Prag jos
  • Produs finit
MB-DPA
MB-DPA
Uși glisante automate și manuale
  • Cu izolație termică
  • Fără izolație termică
  • Prag fără bariere
  • Uși automate
MB-Slide, MB-Slide ST
MB-Slide, MB-Slide ST
Ferestre și uși glisante
  • Glisante
MB-59HS
MB-59HS
Sisteme de uși liftant-glisante
  • Permeabilitatea la aer
    clasa 3 | PN-EN 12207
  • Rezistența la vânt
    clasa C3 | PN-EN 12210
  • Izolarea termică Uf
    > 1,8 | W/(m2K)
  • Impermeabil
    class 9A | (600 Pa), EN 12208
  • Cu izolație termică
  • Montant subțire
  • Montant standard
  • Uși liftante și glisante (HS)
  • Prag jos
MB-59 SLIDE
MB-59 SLIDE
Sistemul de uși glisante pentru balcon
  • Permeabilitatea aerului
    clasa 3 | PN-EN 12207
  • Etanșeitate la apă
    clasa 6A | PN-EN 12208:2001
  • Sarcina generată de vânt
    clasa C3 | PN-EN 12210:2001
  • Nivel de izolare termică
    Uf > 1,9 | W/(m2K)
  • Cu izolație termică
  • Montant subțire
  • Montant standard
  • Prag jos
  • Glisante
MB-59 SLIDE GALANDAGE
MB-59 SLIDE GALANDAGE
Sistemul de uși glisante pentru balcon
  • Permeabilitatea la aer
    clasa 3 | PN-EN 12207:2001
  • Impermeabil
    clasa 5A | PN-EN 12208:2001
  • Rezistența la vânt
    clasa C2 / B2 | PN-EN 12210:2016
  • Izolarea termică Uf
    > 1,9 | W/(m2K)
  • Cu izolație termică
  • Montant subțire
  • Montant standard
  • Prag jos
  • Glisante