Greutatea maximă a foii
750 kg
Înălțimea maximă a ușii
4 m
Lățimea montantului la îmbinarea foilor
25 mm
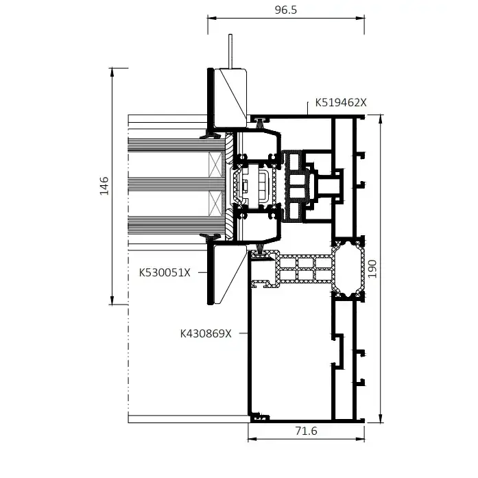
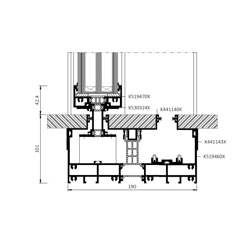
Sistemul MB-SKYLINE TYPE S reprezintă o evoluție revoluționară în designul arhitectural. Cu profile subțiri care se integrează perfect în pereți și tavane și un montant ultra-îngust în punctul de întâlnire al foilor, acest sistem oferă o estetică minimalistă și elegantă, sporind rafinamentul și ușurința oricărei structuri. Elementul său distinctiv este pragul complet ascuns, care creează o tranziție lină între spațiile interioare și cele exterioare ca niciodată până acum.
În MB-SKYLINE TYPE S, profilul inferior împreună cu rolele glisante sunt discret integrate în pardoseală, creând la nivelul pragului o linie elegantă, aproape invizibilă. Bazat pe succesul dovedit al modelului MB-Skyline, această versiune îmbunătățită garantează o calitate excepțională, o funcționare lină și o flexibilitate de design fără egal.
Caracteristici și beneficii principale:










