Топлоизолация за отваряем прозорец
UW от 0,53 | W/(m2K)
Устойчивост на ветрово натоварване
клас C5/B5 | PN-EN 12210:2001
Водонепропускливост
клас AE 1800 | PN-EN 12208:2001
Пропускливост на въздух
клас 4 | PN-EN 12207:2001









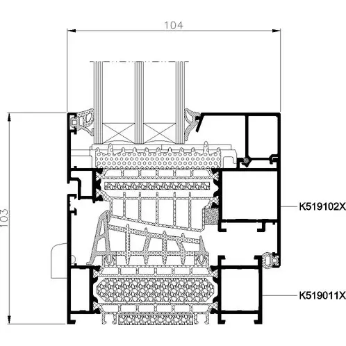
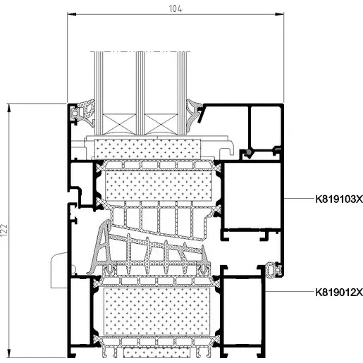
Система за прозорци и врати с термично прекъсване MB-104 Passive, с най-висока топлоизолация, отговаря на всички изисквания за елементи, използвани в пасивните сгради.
Тази система се използва за изработката на външни архитектурни елементи, например: различни видове прозорци, врати, антрета, витрини и пространствени конструкции, които се характеризират, освен с отличната си топлоизолация, също и с много добра звукоизолация, водонепропускливост и висока якост на конструкцията.
Тази система се използва за изработката на външни архитектурни елементи, например: различни видове прозорци, врати, антрета, витрини и пространствени конструкции, които се характеризират, освен с отличната си топлоизолация, също и с много добра звукоизолация, водонепропускливост и висока якост на конструкцията.
Конструкцията на профилите на система MB-104 Passive има два варианта, в зависимост от изискванията за икономия на топлинна енергия: SI и AERO
Параметрите на прозорците и вратите, изработени от елементи на система MB-104 Passive, надхвърлят настоящите изисквания на най-строгите приложими разпоредби и стандарти, поради което система MB-104 Passive е предназначена за енергоспестяващи и пасивни конструкции.











