- Produits
- Realisations
- Téléchargements
- Formation
- Zone autorisée
- Showroom
- Blog
- L'entreprise
- Contact
Perméabilité à l’air
jusqu'à AE 1350 | EN 12152
Étanchéité à l’eau
jusqu'à RE 1500 | EN 12154
Résistance à la charge due au vent
2,4 kN/m | EN 13116
Résistance aux chocs
I5/E5 | EN 14019




Système de façade conçu pour la réalisation de murs- rideaux légers, plats de type suspendu ou incorporés, et d'autres structures spatiales.
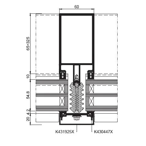
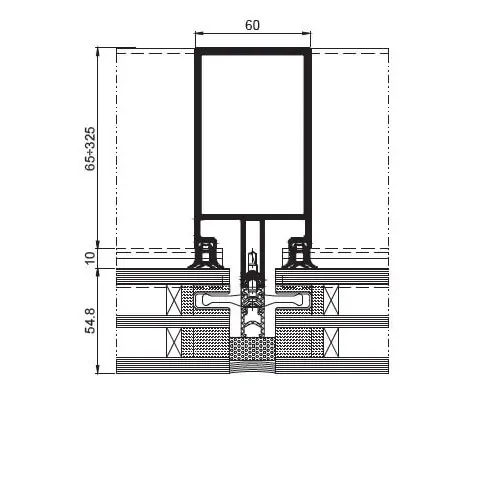
Les poteaux et les traverses d'une largeur de 60 mm permettent de construire des façades esthétiques avec des lignes de séparation étroites et apparentes, tout en assurant la durabilité et la résistance de la structure. Les solutions de ce système permettent d'affleurer la surface des poteaux et des traverses à l'intérieur pour obtenir des aspects différents. Le MB-SR60N se distingue par de très bonnes performances, par la liberté en termes d'agencement de l'espace et par sa variété d'éléments ouvrants à monter sur la façade. À noter en particulier la version à isolation thermique renforcée MB-SR60N HI+ dotée d'isolateurs spéciaux. À votre disposition également la version MB-SR60N EFEKT sans profilés de recouvrement visibles de l'extérieur. Grâce à une large gamme de profilés et d'accessoires, les architectes et les designers peuvent avancer les idées les plus audacieuses de structures aluminium-verre. Des profilés encastrables dédiés ainsi que des profilés presseurs et de recouvrement appropriés ont été mis en œuvre dans les murs en brise-vue horizontaux et verticaux pour modeler librement la forme du bâtiment et supprimer la pose de poteaux angulaires spéciaux. Des solutions modernes en matière d'accessoires et de chevilles permettent d'augmenter l'étendue des efforts transférés, le remplissage d'un module fixe d'une façade pouvant peser jusqu'à 1100 kg.
Caractéristiques techniques: Profondeur des profilés : poteaux : 65 - 325 mm, traverses : 49,5 - 249,5 mm. Vitrages : 4 - 72 mm





