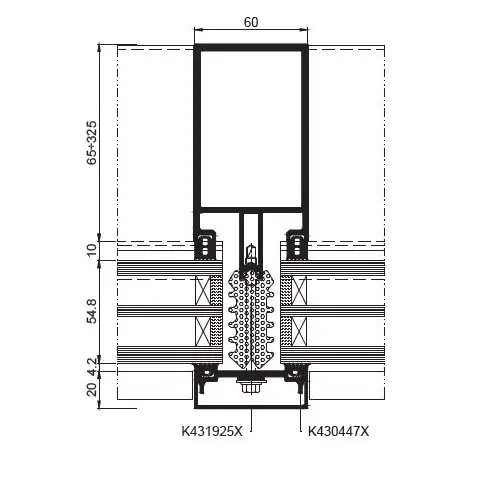
MB-SR60N, MB-SR60N HI

Sloupkopříčková fasáda

Propustnost vzduchu

do AE 1350 | EN 12152

Vodotěsnost

do RE 1500 | EN 12154

Odolnost vůči zatížení větrem

2,4 kN/m | EN 13116

Odolnost proti nárazu

I5/E5 | EN 14019

Certifikáty:

Systém sloupko-příčkových fasád MB-SR60N je řešením, které má obrovské možnosti z hlediska prostorových konstrukci a dává architektům úplnou volnost při projektování moderních objektů. Z tohoto systému je možné provádět konstrukce s velice komplikovanými tvary: střechy s více spády, pásové světlíky nebo světlíky, které přechází do svislé fasády apod. Profily o pohledové šířce 60 mm mají výbornou statiku a současně dovolují maximální průnik světla do prostoru.

Díky širokému spektru tvarů a rozměrů zasklívacích lišt je možné provedení úhlových spojů v rozsahu od 0 do 20° a použití skel s různými tvary, např. lichoběžníkové a trojúhelníkové. Z vnější strany je konstrukce utěsněná speciálním těsnicím izolátorem PE (PP) anebo UV odolným tmelem, který zaručuje dokonalou těsnost na průnik dešťově vody a vzduchu, a také zajišťuje dokonalou tepelnou izolaci fasády.

Technické parametry:

  • průvzdušnost: třída AE 1200 Pa
  • vodotěsnost: třída RE 1200 Pa
  • zatížení větrem: 2800 Pa (bezpečnostní zkoušky 4200 Pa)
  • gravitační zatížení – třída DL 4200
  • vytrhávací zatížení – třída DL 4200
  • LEAFLET MB-SR60N
    220.21 KB / pdf

Naše projekty

Villa Metro

Polsko, Varšava

Villa Metro

Kamienica Żelazko

Polsko, Poznaň

Kamienica Żelazko

Nobu Hotel

Polsko, Varšava

Nobu Hotel

61 Ninth Avenue

Spojené státy, New York

61 Ninth Avenue

125 Greenwich Street

Spojené státy, New York

125 Greenwich Street

Proximo

Polsko, Warszawa

Proximo

Alchemia

Polsko, Gdaňsk

Alchemia

Ambassador Office Building

Polsko, Varšava

Ambassador Office Building

Sky View Parc

Spojené státy, New York

Sky View Parc

Prime Corporate Center

Polsko, Varšava

Prime Corporate Center

ICE Kraków Congress Centre

Polsko, Krakov

ICE Kraków Congress Centre

Carbon Tower

Polsko, Vratislav

Carbon Tower

Nimbus Office

Polsko, Varšava

Nimbus Office

Wydział Neofilologii Uniwersytetu Gdańskiego

Polsko, Gdaňsk

Wydział Neofilologii Uniwersytetu Gdańskiego

Millenium Tower IV

Polsko, Vratislav

Millenium Tower IV

Muzeum Historii Żydów Polskich

Polsko, Varšava

Muzeum Historii Żydów Polskich

Libra Business Center

Polsko, Varšava

Libra Business Center

Lotnisko Poznań - Ławica

Polsko, Poznaň

Lotnisko Poznań - Ławica

Międzynarodowe Targi Łódzkie

Polsko, Lodž

Międzynarodowe Targi Łódzkie

Waterfront

Polsko, Gdyně

Waterfront

ICE Kraków Congress Centre

Polsko, Krakov

ICE Kraków Congress Centre

Carbon Tower

Polsko, Vratislav

Carbon Tower

Nimbus Office

Polsko, Varšava

Nimbus Office

Wydział Neofilologii Uniwersytetu Gdańskiego

Polsko, Gdaňsk

Wydział Neofilologii Uniwersytetu Gdańskiego

Millenium Tower IV

Polsko, Vratislav

Millenium Tower IV

Muzeum Historii Żydów Polskich

Polsko, Varšava

Muzeum Historii Żydów Polskich

Libra Business Center

Polsko, Varšava

Libra Business Center

Lotnisko Poznań - Ławica

Polsko, Poznaň

Lotnisko Poznań - Ławica

Międzynarodowe Targi Łódzkie

Polsko, Lodž

Międzynarodowe Targi Łódzkie

Waterfront

Polsko, Gdyně

Waterfront