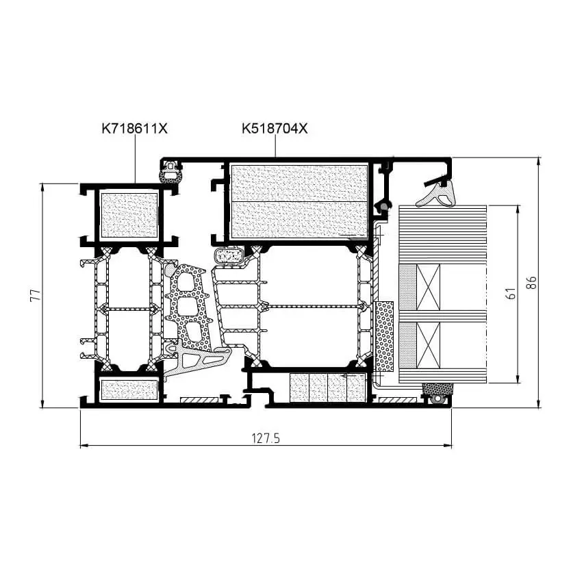
MB-86 EI

Fire-rated windows, doors, and partitions

Watertightness

class E 1500 Pa | EN 12208

Thermal insulation UW

from 0,86 | W/(m2K)

Air permeability

class 4 | EN 12207

Fire rating

class EI30 | EN 13501-2:2016-07

Certificates:

MB-86N EI is an advanced solution for creating external fire-rated partitions that can be fitted with operable windows and doors. It meets the requirements of the PN-EN 13501-2 standard, offering fire-resistance classes EI15, EW15, EI30, EW30, and, in the near future, EI60 and EW60. The EI classification indicates the period during which non-load-bearing elements maintain integrity and insulation, while the EW classification refers to the period during which these elements maintain integrity and protect against radiant heat. The MB-86N EI system ensures high thermal and acoustic insulation as well as excellent water and air tightness.

MB-86N is the ideal choice for public buildings, offices, hotels, and restaurants where regulations require the use of thermally insulated fire-rated partitions. With its versatility and reliability, it ensures safety and user comfort in high-traffic environments.

Functionality and design for 21st-century requirements

The MB-86N EI system combines the advantages of standard partition solutions with the benefits of fire resistance, offering excellent thermal and operational performance while maintaining full functionality. Its design meets current energy-saving and environmental protection standards while delivering a high level of fire safety. In addition, it features a modern aesthetic that complements the architecture of contemporary buildings.

For developers and homeowners

  • High acoustic insulation for enhanced user comfort
  • Energy-efficient, highly insulated windows and doors suitable for buildings aiming to achieve BREEAM and LEED certification
  • Standard use of RC2-class fittings in MB-86N EI windows; with a modest additional investment in appropriate glazing, the system can achieve burglary resistance, further increasing security
  • Easy installation speeds up construction, and the manufacturing technology—based on the MB-86N system—simplifies production of the fire-rated variant

For architects

  • Compatibility with other Aluprof products
  • A combination of modern design and fire safety
  • Wide glazing range allows the use of double or triple glazing units in various configurations
  • Optional automation for smoke ventilation and air supply
  • Easy fire-zone management

For fabricators

  • Ability to produce constructions using almost all fittings available for non-fire-rated systems
  • Wide range of glazing thicknesses enables the use of different types of insulating glass units, providing greater design flexibility during production
  • Classified according to fire-resistance standards PN-EN 13501 and product standards PN-EN 16034 for windows and doors
  • For EI2 fire-rated doors in single installations, no internal fire insulation is required in the aluminium profile chambers, allowing faster fabrication and lower production costs

Why choose Aluprof products?

  • Compliance with European standards for alloy quality, manufacturing tolerances, and strength characteristics
  • Possibility of combining different constructions while maintaining the correct fire-resistance class
  • Fire-resistance ratings from EI15 to E120 for vertical constructions, and REI30 / RE45 for glazed roofs

Choose MB-86N EI fire-rated windows, doors, and partitions to ensure safety, durability, and excellent thermal and acoustic insulation for your property.

  • Fire rated and smoke exhaust systems
    6.27 MB / pdf
  • Hygienic certificate
    315.05 KB / pdf
  • Product card
    860.68 KB / pdf

Our projects

Villa Metro

Poland, Warsaw

Villa Metro

Kamienica Żelazko

Poland, Poznan

Kamienica Żelazko

Nobu Hotel

Poland, Warsaw

Nobu Hotel

61 Ninth Avenue

United States, New York

61 Ninth Avenue

125 Greenwich Street

United States, New York

125 Greenwich Street

Proximo

Poland, Warszawa

Proximo

Alchemia

Poland, Gdansk

Alchemia

Ambassador Office Building

Poland, Warsaw

Ambassador Office Building

Sky View Parc

United States, New York

Sky View Parc

Prime Corporate Center

Poland, Warsaw

Prime Corporate Center

ICE Kraków Congress Centre

Poland, Krakow

ICE Kraków Congress Centre

Carbon Tower

Poland, Wroclaw

Carbon Tower

Nimbus Office

Poland, Warsaw

Nimbus Office

Faculty of Modern Languages Gdansk University

Poland, Gdansk

Faculty of Modern Languages Gdansk University

Millenium Tower IV

Poland, Wroclaw

Millenium Tower IV

Museum of the History of Polish Jews

Poland, Warsaw

Museum of the History of Polish Jews

Libra Business Center

Poland, Warsaw

Libra Business Center

International Airport Poznań - Ławica

Poland, Poznan

International Airport Poznań - Ławica

Lodz International Fair

Poland, Lodz

Lodz International Fair

Waterfront

Poland, Gdynia

Waterfront

ICE Kraków Congress Centre

Poland, Krakow

ICE Kraków Congress Centre

Carbon Tower

Poland, Wroclaw

Carbon Tower

Nimbus Office

Poland, Warsaw

Nimbus Office

Faculty of Modern Languages Gdansk University

Poland, Gdansk

Faculty of Modern Languages Gdansk University

Millenium Tower IV

Poland, Wroclaw

Millenium Tower IV

Museum of the History of Polish Jews

Poland, Warsaw

Museum of the History of Polish Jews

Libra Business Center

Poland, Warsaw

Libra Business Center

International Airport Poznań - Ławica

Poland, Poznan

International Airport Poznań - Ławica

Lodz International Fair

Poland, Lodz

Lodz International Fair

Waterfront

Poland, Gdynia

Waterfront