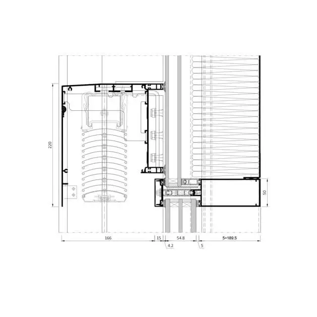
MB-SR50N ZS

Mullion and transom curtain wall system integrated with SkyFlow venetian blinds

Air permeability

class AE1200 | Pa

Watertightness

class RE1200 | Pa

Wind load resistance

2,4 | kN/m2

Certificates:

The MB-SR50N ZS system is an innovative solution combining the SkyFlow venetian blind system with Aluprof’s mullion-transom curtain walling system MB-SR50N. It has been created primarily for the construction of buildings where complete harmony between the technical and aesthetic aspects plays a particular role.

With this in mind, we designed clamping strips, making it possible to fit the façade infills and concealing strips, which also act as the guides for the external blinds. This means that the decision to use this kind of blind can be taken later on in the process, when the façade has already been installed. The entire mechanism is discreetly concealed in an aesthetic, extruded aluminium headbox. The MB-SR50N ZS is available with aluminium or cord guides. The maximum dimensions are 4500 x 4000 mm.

FUNCTIONS AND AESTHETICS


two types of pin are available. One is hard-wearing steel. The other is PVC, which minimises wind noise;

  • the slats are made using an aluminium profile. C-shaped and Z-shaped versions are available. The C-shaped slats curveinwards on both sides, guaranteeing their rigidity and wind-resistance. In addition, they can be angled from zero to onehundred and eighty degrees. The Z-shaped slats feature a structure that provides a deeper darkness and they are also fitted with special sound dampers. They can be angled from zero to ninety degrees;
  • the guide channels, the only solution of this type available on the market, are equipped with special seals eliminating the noise that can arise when the slat hits the guide channel;
  • the textile elements of the blind are made of high quality polyester and they are thermally fixed, which guarantees high resistance to weathering, stretching, abrasion, as well as UV rays and the appearance of mould. The ladder braid is arranged in the shape of the number 8, which ensures smooth rolling. In addition, the Z90 slats are equipped with a special mechanism that provides a lower height of the package. Textiles are available in grey and black;
  • two variants of the endslat: complete and open;
  • specially designed clamping strips make it possible to fit the façade infills and concealing strips, which also act as the guides for the venetian blinds.

Our projects

Villa Metro

Poland, Warsaw

Villa Metro

Kamienica Żelazko

Poland, Poznan

Kamienica Żelazko

Nobu Hotel

Poland, Warsaw

Nobu Hotel

61 Ninth Avenue

United States, New York

61 Ninth Avenue

125 Greenwich Street

United States, New York

125 Greenwich Street

Proximo

Poland, Warszawa

Proximo

Alchemia

Poland, Gdansk

Alchemia

Ambassador Office Building

Poland, Warsaw

Ambassador Office Building

Sky View Parc

United States, New York

Sky View Parc

Prime Corporate Center

Poland, Warsaw

Prime Corporate Center

ICE Kraków Congress Centre

Poland, Krakow

ICE Kraków Congress Centre

Carbon Tower

Poland, Wroclaw

Carbon Tower

Nimbus Office

Poland, Warsaw

Nimbus Office

Faculty of Modern Languages Gdansk University

Poland, Gdansk

Faculty of Modern Languages Gdansk University

Millenium Tower IV

Poland, Wroclaw

Millenium Tower IV

Museum of the History of Polish Jews

Poland, Warsaw

Museum of the History of Polish Jews

Libra Business Center

Poland, Warsaw

Libra Business Center

International Airport Poznań - Ławica

Poland, Poznan

International Airport Poznań - Ławica

Lodz International Fair

Poland, Lodz

Lodz International Fair

Waterfront

Poland, Gdynia

Waterfront

ICE Kraków Congress Centre

Poland, Krakow

ICE Kraków Congress Centre

Carbon Tower

Poland, Wroclaw

Carbon Tower

Nimbus Office

Poland, Warsaw

Nimbus Office

Faculty of Modern Languages Gdansk University

Poland, Gdansk

Faculty of Modern Languages Gdansk University

Millenium Tower IV

Poland, Wroclaw

Millenium Tower IV

Museum of the History of Polish Jews

Poland, Warsaw

Museum of the History of Polish Jews

Libra Business Center

Poland, Warsaw

Libra Business Center

International Airport Poznań - Ławica

Poland, Poznan

International Airport Poznań - Ławica

Lodz International Fair

Poland, Lodz

Lodz International Fair

Waterfront

Poland, Gdynia

Waterfront